

- Prix
- 347 291 €
Maison neuve • Thomery (77)
- Nom et prix
- Terrain à bâtir Thomery (77810) • 347 291 €
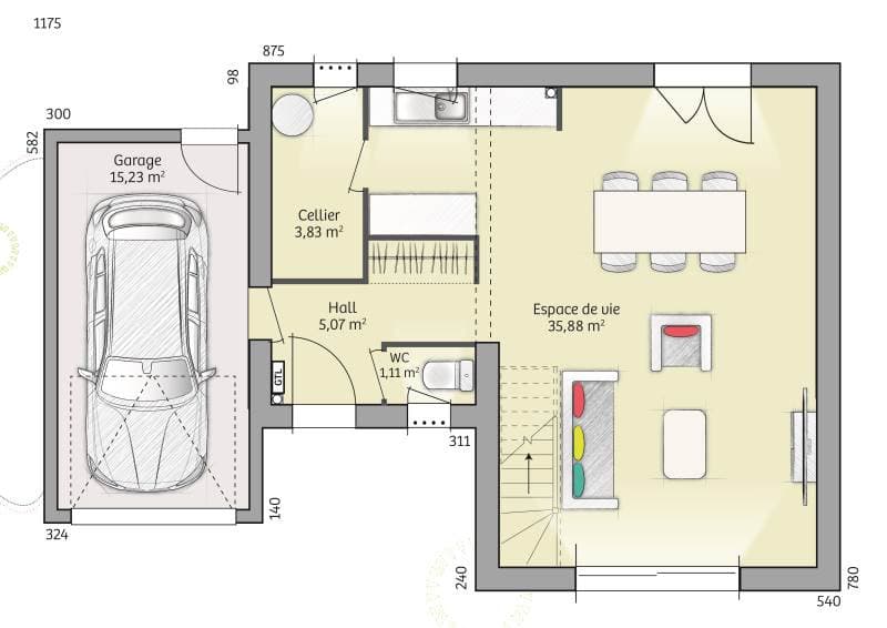
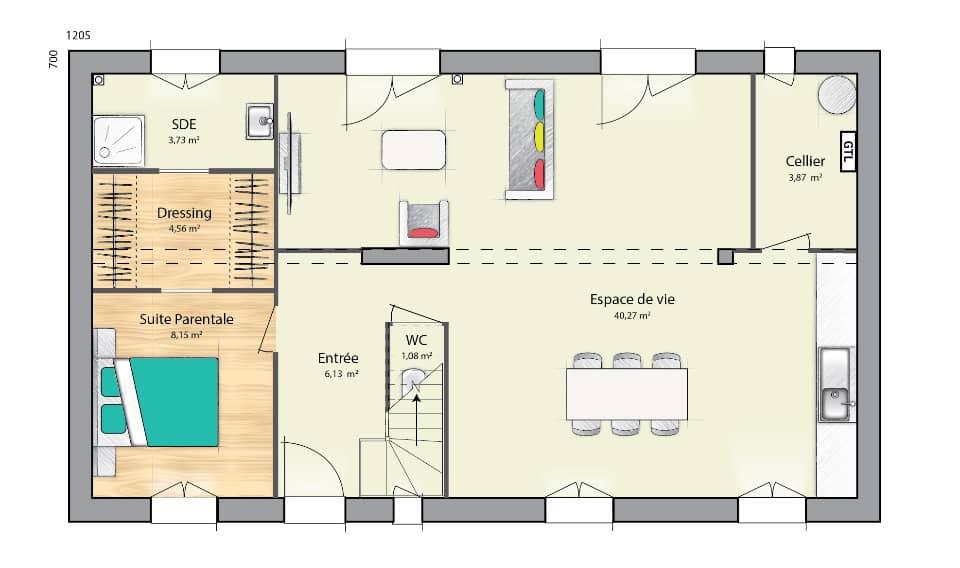
PROJET TERRAIN + MAISON + NOTAIRE + VIABILISATION = 347 291€ Maison T5 (90 m²) en vente à Thomery EMPLACEMENT PRIVILÉGI- MAISON 5 PIÈCES NEUVE Proche de la gare (Paris à 45 min avec le Transilien R), Maisons Balency Moret-Loing-et-Orvanne vous présente à vendre, bénéficiant d'un emplacement d'exception dans Thomery (77810), cette maison de 5 pièces de 90 m² et de 506 m² de terrain. Elle propose trois chambres, une cuisine et une salle de bains. Il s'agit d'une maison de 2 niveaux. Elle est neuve. La maison est située dans un quartier recherché. L'École Primaire Jacquemin, l'École Maternelle Rose Charmeux et l'École Élémentaire Alexandre Huet se trouvent à moins de 10 minutes à pied. Côté transports en commun, il y a 11 gares à moins de 10 minutes en voiture. On trouve une bibliothèque, deux tennis, un commerce, une boulangerie, un supermarché et un bureau de poste à proximité de la maison. Elle est à vendre pour la somme de 347 291 €. Contactez Arnaud MOINE (tél : 06-40-48-40-55) pour toute question sur la maison ou sur les modalités de vente. Donnez vie à vos projets immobiliers avec Maisons Balency Moret-Loing-et-Orvanne.












