

- Prix
- 549 000 €
Maison neuve • Moret-Loing-et-Orvanne (77)
- Nom et prix
- Terrain à bâtir Moret-Loing-et-Orvanne (77250) • 549 000 €
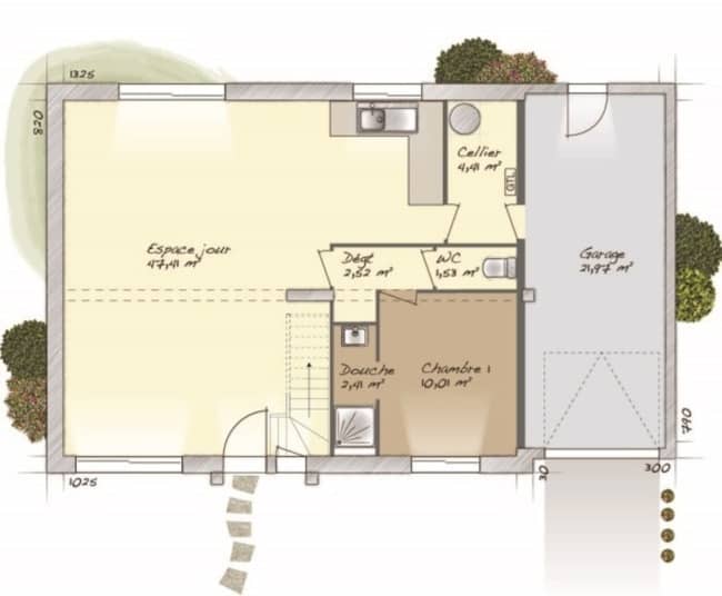
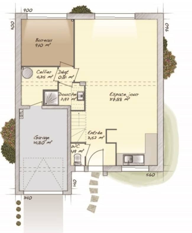
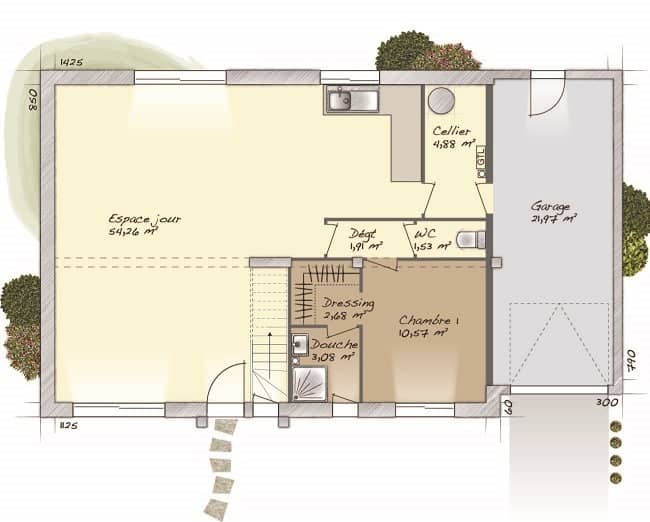
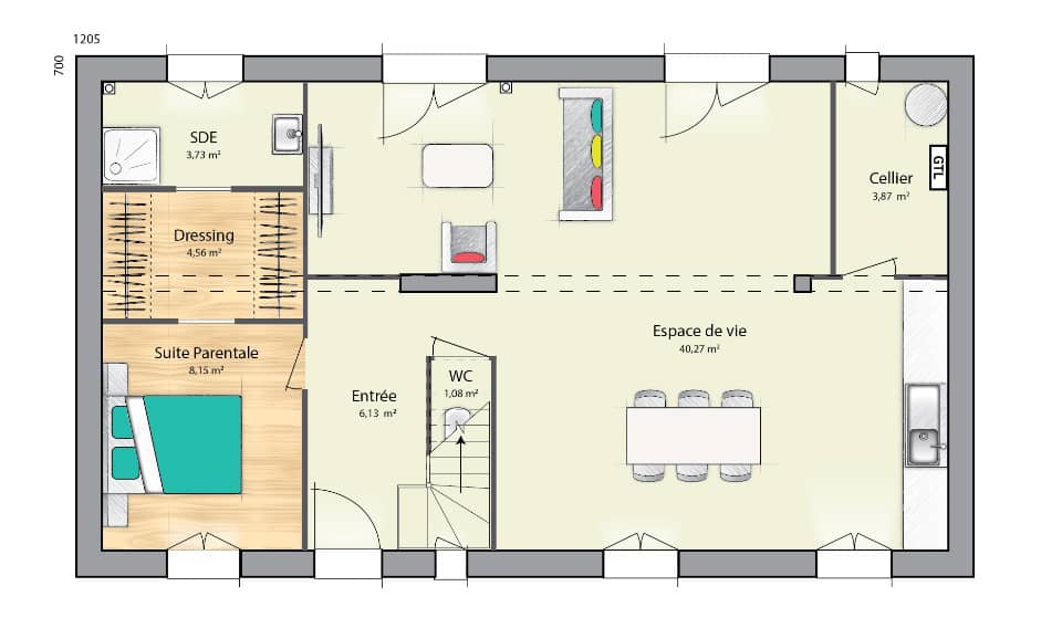
Maisons Berval, constructeur depuis 1932, vous propose de faire construire votre maison dans un charmant lotissement situé à Moret-sur-Loing. À quelques minutes du Transilien R (gare de Saint-Mammès, 50 min de Paris) Le modèle « Ergonomy » de BERVAL se distingue par son adaptabilité aux différentes étapes de la vie de ses occupants. Conçu pour améliorer le bien-être et simplifier le quotidien, il offre une flexibilité unique : un rez-de-chaussée totalement fonctionnel pour une personne seule ou un couple, avec la possibilité d'aménager l'étage à mesure que les besoins d'espace grandissent. Pour toutes demandes de renseignements, veuillez contacter Chloé Burot. Maisons Berval est certifiée NF HQE (Haute Qualité Environnementale)












