

- Prix
- 315 000 €
Maison neuve • Viarmes (95)
- Nom et prix
- Terrain à bâtir () • 315 000 €
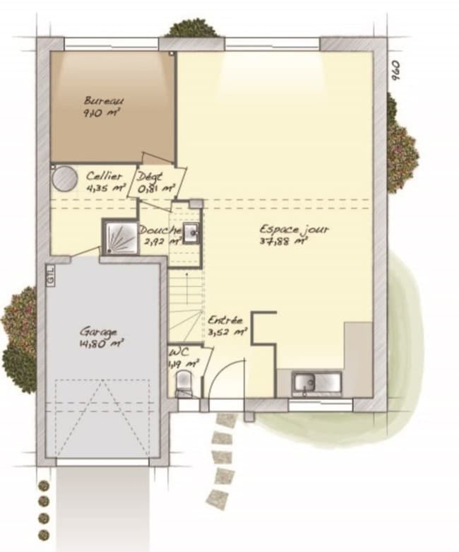
Terrain à bâtir entièrement viabilisé à VIARMES (EDF - PTT - EAU - TAE) d'une superficie de 270 m²,plat, idéalement situé, avec une belle façade de 11 ml Exemple de projet maison avec un comble aménagé, d'une surface de 92 m² avec 3 chambres à l'étage. Garage intégré compris. Tous nos projets sont entièrement réalisés sur-mesure, de nombreuses prestations incluses: baies coulissantes en aluminium, volets roulants intégrés à la maçonnerie (non-apparents) motorisés. Entrée, cuisine, pièce de vie, cellier et pièces d'eau carrelés, maison prête à décorer, clef en main. Pompe à chaleur ou pompe à chaleur hybride (gaz) dernière génération (classe énergétique A+), plancher chauffant RDC (et ETAGE), sèche-serviettes, plusieurs choix de menuiseries intérieures, construction en brique. RE 2020. Projet terrain + maison + frais annexes. Pour tout renseignement contacter XAVIER de l'agence Maisons France Confort : 06 16 27 53 27












