
Maison neuve • Esches (60)
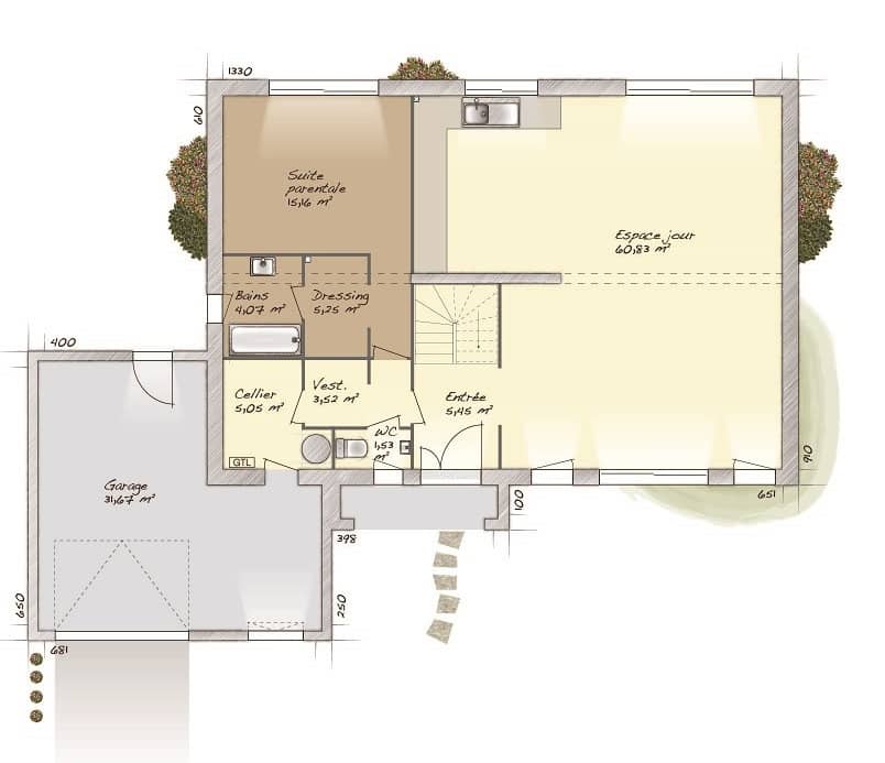
Venez concevoir votre maison à ESCHES (60) d'une superficie de 456 m²,plat, avec belle façade constructible de 27 ml, idéalement situé. Exemple de projet maison de plein pied de 85 m2 loi Carrez + garage intégré Tous nos projets sont entièrement réalisés sur-mesure, de nombreuses prestations incluses: baies coulissantes en aluminium, volets roulants intégrés à la maçonnerie (non-apparents) motorisés. Entrée, cuisine, pièce de vie, cellier et pièces d'eau carrelés, maison prête à décorer, clef en main. Pompe à chaleur ou pompe à chaleur hybride (gaz) dernière génération (classe énergétique A+), plancher chauffant RDC (et ETAGE), sèche-serviettes, plusieurs choix de menuiseries intérieures, construction en brique. RE 2020. Projet terrain + maison + frais annexes. Pour tout renseignement contacter XAVIER de l'agence Maisons France Confort au 06 16 27 53 27.
Proposé par MAISONS FRANCE CONFORT - COMPIEGNE








