
Maison neuve • Neuilly-en-Thelle (60)
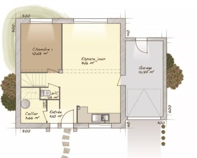
VENTE d'une maison de 7 pièces (124 m²) à Neuilly-en-Thelle PROCHE DE CERGY - MAISON 7 PIÈCES NEUVE En vente : au pied de la gare de Persan-Beaumont (Paris à 40 min avec le Transilien H), à Neuilly-en-Thelle (60530), Maisons Balency Baillet-en-France vous présente cette maison de 7 pièces de 124 m² et de 770 m² de terrain. C'est une maison de 2 niveaux. Elle se divise en cinq chambres, une cuisine et trois salles de bains. La maison est neuve. Il y a l'École Élémentaire Claude Debussy, l'École Élémentaire Léonard de Vinci et l'École Maternelle Georges Brassens à moins de 10 minutes à pied. Niveau transports, on trouve 11 gares à moins de 10 minutes en voiture. L'autoroute A16 est accessible à 9 km et Cergy se situe à 27 km. Il y a une bibliothèque, deux commerces, une boulangerie, un supermarché, un bureau de poste et une boucherie-charcuterie à quelques minutes de la maison. Elle est proposée à l'achat pour 283 000 €. N'hésitez pas à prendre contact avec Antoine FLIPPE (07-82-59-37-75) pour toute question sur cette maison.
Proposé par MAISONS BALENCY - YVELINES










