

- Prix
- 371 995 €
Maison neuve • Villiers-le-Bel (95)
- Nom et prix
- Terrain à bâtir Villiers-le-Bel (95400) • 371 995 €
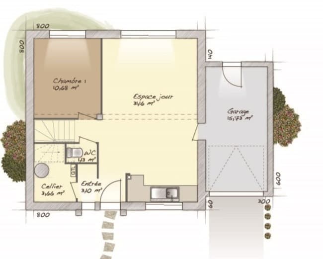
Maison F6 (98 m²) en vente à Villiers-le-Bel MAISON 6 PIÈCES NEUVE À vendre : au pied de la gare de Sarcelles-Saint-Brice (Paris à 15 min avec le Transilien H), nous sommes ravis de vous présenter à Villiers-le-Bel (95400), cette maison de 6 pièces de 98 m². Elle se divise en quatre chambres, une cuisine et une salle de bains. Le terrain de cette maison s'étend sur 450 m². C'est une maison de 2 niveaux. Elle est neuve. Plusieurs écoles (maternelle, élémentaire, primaire et collège) sont implantées à moins de 10 minutes à pied, tout comme une structure d'accueil pour la petite enfance. Niveau transports, il y a trois lignes de RER (D, C et B) ainsi que 37 gares à moins de 10 minutes en voiture. On trouve des boulangeries, des commerces, trois supermarchés, des boucheries-charcuteries et trois supérettes à quelques minutes. Enfin, le marché Place Gounoud a lieu tous les dimanches matin. Elle est proposée à l'achat pour 371 995 €. N'hésitez pas à prendre contact avec notre agence (DUCOS Denis : 06-80-06-50-40) pour toute information sur la maison et sur les démarches à suivre. Maisons Balency Moisselles vous accompagne dans tous vos projets immobiliers et à toutes les étapes de l'achat.