

- Prix
- 375 000 €
Maison neuve • Butry-sur-Oise (95)
- Nom et prix
- Terrain à bâtir Butry-sur-Oise (95430) • 375 000 €
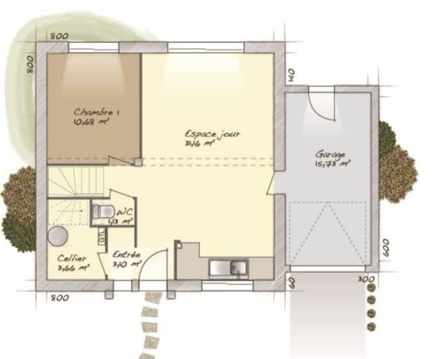
Maison de 5 pièces (98 m²) à vendre à Butry-sur-Oise MAISON 5 PIÈCES NEUVE - PROCHE DE PARIS En vente : à proximité de la gare de Valmondois (Paris à 45 min avec le Transilien H), nous sommes ravis de vous proposer cette maison de 5 pièces de 98 m² et de 608 m² de terrain à Butry-sur-Oise (95430). Son intérieur comporte quatre chambres, une cuisine et une salle de bains. Cette maison possède 2 niveaux. Elle est neuve. L'École Primaire Publique Raoul Sales et l'École Secondaire Privée Pierre Gilles de Gennes sont implantés à moins de 10 minutes à pied. Côté transports en commun, il y a la gare Valmondois à quelques pas de la maison. On trouve une bibliothèque, deux tennis, une boulangerie et deux commerces à proximité. Elle est à vendre pour la somme de 375 000 €. Prenez contact avec notre agence (MONTANIER Aurelien : 06-24-66-88-34) pour obtenir de plus amples informations sur cette maison.











