

- Prix
- 738 500 €
Maison neuve • Antony (92)
- Nom et prix
- Terrain à bâtir Antony (92160) • 738 500 €
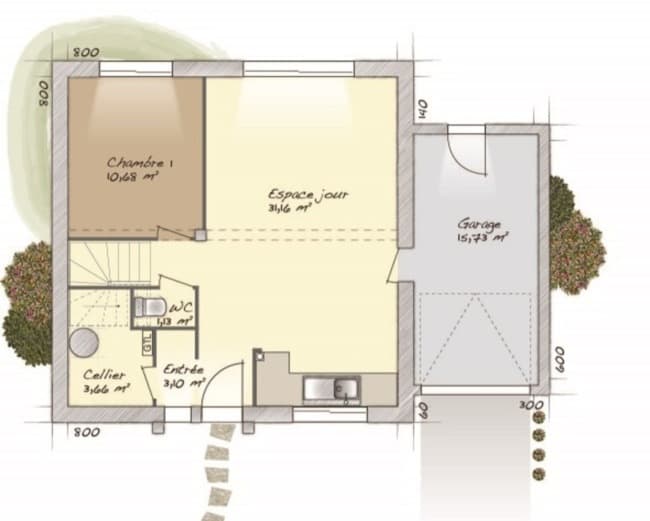
VENTE : maison T6 (139 m²) à Antony MAISON 6 PIÈCES NEUVE À vendre : au pied du RER B (10 min de Paris), nous sommes heureux de vous proposer cette maison de 6 pièces de 139 m² et de 450 m² de terrain à Antony (92160). Elle compte quatre chambres, une cuisine et deux salles de bains. Il s'agit d'une maison de 2 niveaux. Elle est neuve. Il y a des écoles (de la maternelle au lycée) à moins de 10 minutes à pied, tout comme huit crèches. Côté transports, on trouve la ligne de RER B (Antony) à proximité. Il y a une bibliothèque, un bassin de natation, des commerces, des boulangeries, trois supermarchés, un bureau de poste et des épiceries à quelques minutes. Elle est à vendre pour la somme de 738 500 €. Contactez Sébastien DARTEVELLE (06-24-63-58-60) pour obtenir de plus amples informations sur la maison. Maisons Balency Dammartin-en-Goële vous accompagne dans toutes vos démarches et à toutes les étapes de l'achat.











