

- Prix
- 382 500 €
Maison neuve • Longperrier (77)
- Nom et prix
- Terrain à bâtir Longperrier (77230) • 382 500 €
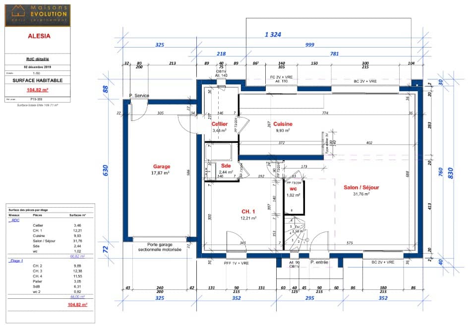
Contactez Guillaume Bordes de l'agence Maisons Evolution de Mareuil-lès-Meaux au 06.22.93.94.71 pour avoir plus d'informations sur ce projet. Découvrez cette très jolie maison moderne de 122 m² habitables, aux dernières normes énergétiques, idéalement située sur la commune de Longperrier. Elle est composée de 3 grandes chambres dont une grande suite parentale avec salle d'eau, d'une seconde salle de bains, de deux WC séparés et d'un grand salon-séjour lumineux avec cuisine ouverte donnant sur un vaste cellier/buanderie. Il est possible d'y ajouter un garage ou un carport. Les plans sont entièrement modifiables selon vos souhaits, en agence ou visioconférence. Nous vous proposons un véritable accompagnement de qualité tout au long de votre projet. Dessinons ensemble votre future maison ! Tel : 06.22.93.94.71











