
- Prix
- 246 800 €
Maison neuve • Éragny-sur-Epte (60)
- Nom et prix
- Terrain à bâtir Éragny-sur-Epte (60590) • 246 800 €
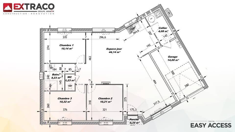
VENTE d'une maison T5 (102 m²) à Éragny-sur-Epte IDÉALEMENT SITUÉE - MAISON 5 PIÈCES NEUVE À vendre : à côté du Transilien J (gare de Gisors, 1 h de Paris), idéalement située dans Éragny-sur-Epte (60590), découvrez cette maison de 5 pièces de 102 m² et de 497 m² de terrain. Elle propose quatre chambres, une cuisine et une salle de bains. Cette maison compte 2 niveaux. Elle est neuve. La maison se situe dans un secteur recherché. On trouve l'École Primaire Jean Mermoz à moins de 10 minutes à pied. Niveau transports, il y a quatre gares à moins de 10 minutes en voiture. On trouve un accès à la nationale N31 à 19 km et Beauvais se trouve à 26 km. Il y a un tennis et une bibliothèque dans les environs. Son prix de vente est de 246 800 €. Contactez notre agence (BOREAU Gilles : 02-32-51-77-46) pour tout renseignement sur la propriété, sur les modalités de vente ou sur les démarches à suivre. Concrétisez vos projets immobiliers avec Les Maisons Extraco Les Andelys.










