

- Prix
- 493 900 €
Maison neuve • Serris (77)
- Nom et prix
- Terrain à bâtir Serris (77700) • 493 900 €
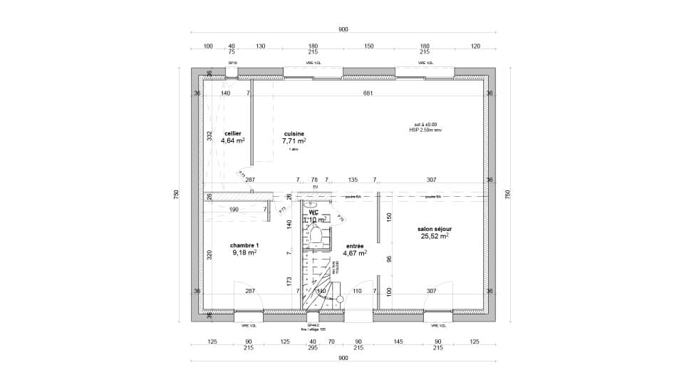
Contactez Guillaume Bordes de l'agence Maisons Evolution de Mareuil-lès-Meaux au 06.22.93.94.71 pour avoir plus d'informations sur ce projet. Très jolie maison moderne à combles aménagés de 105 m² habitables avec garage accolé idéalement située sur la commune de Serris. Elle est composée de 4 chambres au total dont une grande suite parentale avec salle d'eau, d'une seconde salle de bains, de deux WC séparés et d'un grand salon-séjour lumineux avec cuisine ouverte donnant sur un cellier puis sur le garage. Les plans sont entièrement modifiables selon vos souhaits, en agence ou visioconférence. Nous vous proposons un véritable accompagnement de qualité tout au long de votre projet. Dessinons ensemble votre future maison ! Tel : 06.22.93.94.71











