

- Prix
- 460 000 €
Maison neuve • Brest (29)
- Nom et prix
- Terrain à bâtir Brest (29200) • 460 000 €
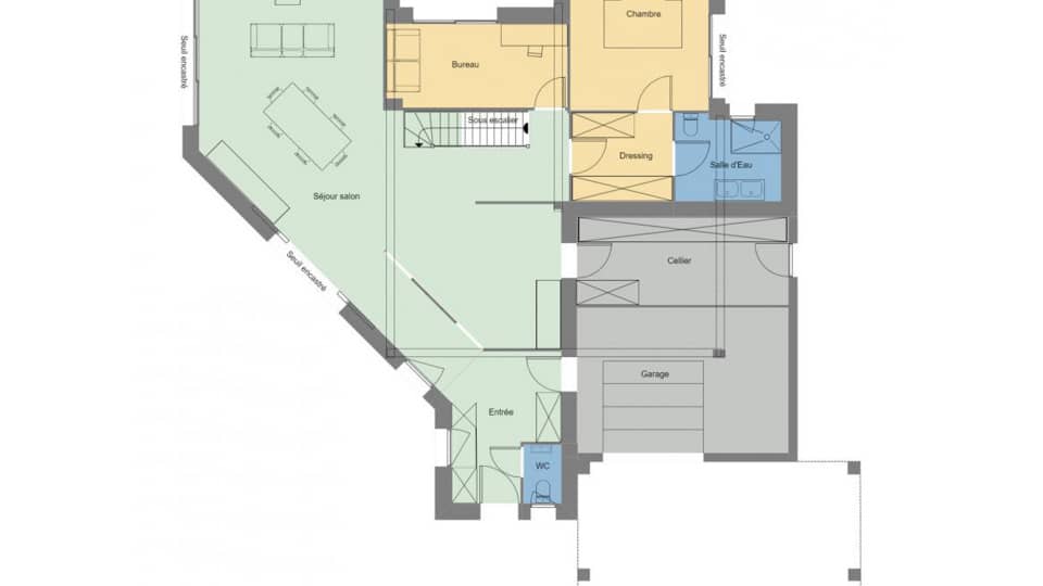
🏡 Terrain à vendre - Rive Droite (Recouvrance) - 512 m² 📍 Emplacement rare à Brest - Quartier Recouvrance Découvrez ce terrain hors lotissement de 512 m², issu d'une division de parcelle. Idéalement situé rive droite, à proximité immédiate des commerces, des écoles et des transports en commun, il offre un cadre de vie pratique et recherché. 🏠 Projet de construction proposé avec Maisons de l'Avenir : Nous vous proposons les plans d'une maison de style tradi-contemporaine, pensée pour allier confort et performance énergétique. ✅ Surface habitable : 140 m² (entièrement adaptable selon vos besoins) ✅ 4 chambres, dont une suite parentale avec salle d'eau et dressing ✅ 2 salles d'eau ✅ Espace de vie lumineux d'environ 55 m² ✅ Cuisine ouverte avec cellier attenant ✅ Garage pour véhicule et espace de stockage Prix Terrain + Maisons = 460000€ 🌿 Cette maison s'inscrit dans notre concept Bâti Activ, des maisons passives et intelligentes conçues pour : Maximiser l'ensoleillement naturel ☀️ Réduire les consommations d'énergie Offrir un confort thermique été comme hiver 📩 Si ce bien vous intéresse, faites vite ! 📞 Contactez Erwan TILLY - Maisons de l'Avenir Nous conviendrons ensemble d'une visite du terrain et d'un projet sur mesure, selon vos envies et votre mode de vie.











