

- Prix
- 405 990 €
Maison neuve • Chalifert (77)
- Nom et prix
- Terrain à bâtir Chalifert (77144) • 405 990 €
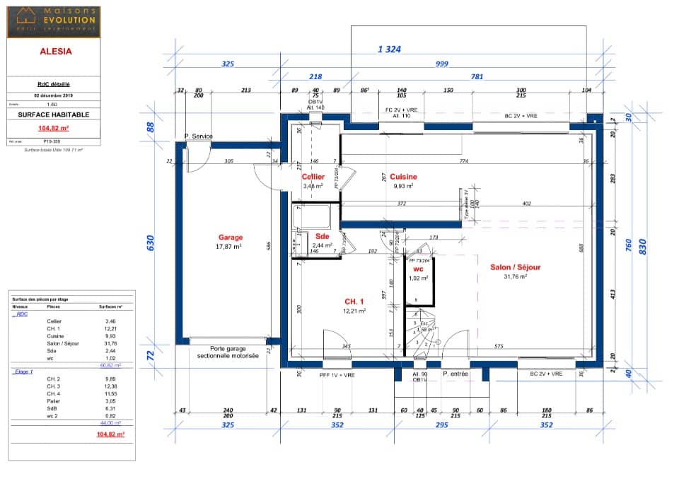
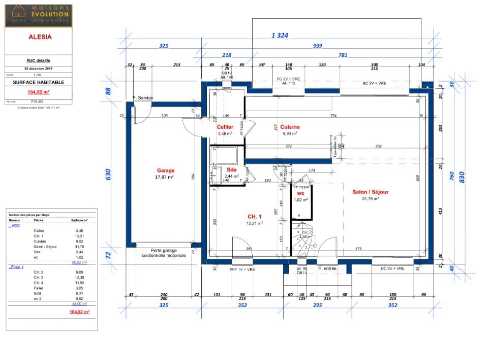
Contactez Guillaume Bordes de l'agence Maisons Evolution de Mareuil-lès-Meaux au 06.22.93.94.71 pour avoir plus d'informations sur ce projet. Cette jolie maison en « L » de plain-pied d'une superficie de 90 m² habitables avec garage accolé est idéalement située sur la commune de Chalifert. Elle est composée de 3 chambres, d'une grande salle de bains, de WC séparés et d'un grand salon-séjour lumineux avec cuisine ouverte, cellier et garage. Les plans sont modifiables selon vos souhaits, en agence ou visioconférence. Nous vous proposons un véritable accompagnement de qualité tout au long de votre projet. Dessinons ensemble votre future maison ! Tel: 06.22.93.94.71











