

- Prix
- 280 950 €
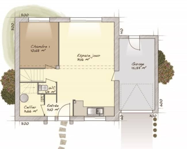
Maison neuve • Quincy-Voisins (77)
- Nom et prix
- Terrain à bâtir () • 280 950 €
Contactez Guillaume Bordes de l'agence Maisons Evolution de Mareuil-lès-Meaux au 06.22.93.94.71 pour avoir plus d'informations sur ce projet. Jolie maison à combles aménagés d'une superficie de 90 m² habitables avec garage accolé en option idéalement située sur la commune de Quincy-Voisins. Elle est composée de 4 chambres dont une au rez-de-chaussée (pouvant faire office de bureau), d'une salle de bains, de deux WC, et d'un grand salon-séjour lumineux avec cuisine ouverte, cellier et garage. Les plans sont modifiables selon vos souhaits, en agence ou visioconférence. Nous vous proposons un véritable accompagnement de qualité tout au long de votre projet. Dessinons ensemble votre future maison ! Tel: 06.22.93.94.71










