
- Prix
- 418 800 €
Maison neuve • Guernes (78)
- Nom et prix
- Terrain à bâtir Guernes (78520) • 418 800 €
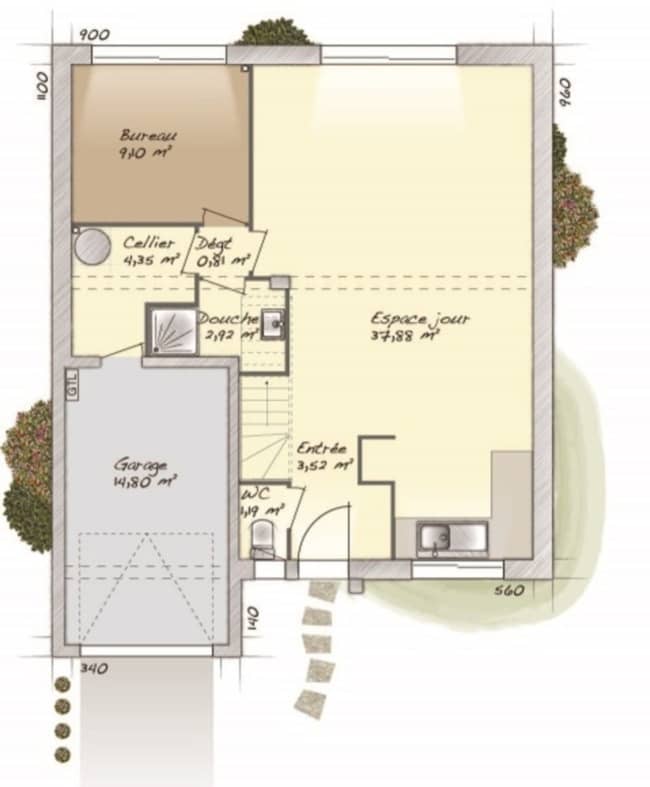
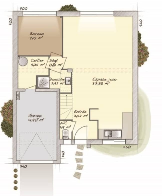
VENTE d'une maison F4 (135 m²) à Guernes IDÉALEMENT SITUÉE - MAISON 4 PIÈCES NEUVE En vente : à quelques minutes de la gare de Rosny-sur-Seine (Paris à 45 min avec le Transilien J), laissez vous charmer par, idéalement située dans Guernes (78520), cette maison de 4 pièces de 135 m² et de 800 m² de terrain. C'est une maison de 2 niveaux. Son intérieur propose quatre chambres, une cuisine et deux salles de bains. Cette maison est neuve. Cette maison se situe dans un quartier attractif. On y trouve une école élémentaire. Niveau transports, on trouve cinq gares à moins de 10 minutes en voiture. Il y a une boulangerie et une épicerie à proximité. Son prix de vente est de 418 800 €. Contactez notre agence (BOREAU Gilles : 01-30-65-11-55) pour toute question sur la maison ou sur les modalités de vente. Les Maisons Extraco Chambourcy est là pour vous accompagner dans toutes vos démarches.













