

- Prix
- 299 000 €
Maison neuve • Aigné (72)
- Nom et prix
- Terrain à bâtir Aigné (72650) • 299 000 €
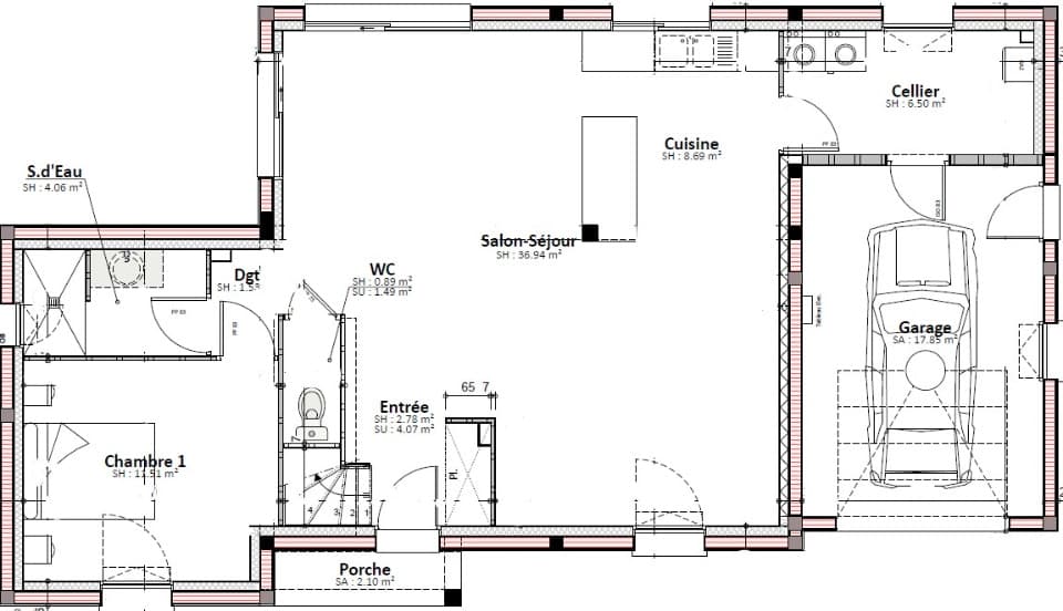
VENTE d'une maison de 6 pièces (108 m²) à Aigné EMPLACEMENT PRIVILÉGI- MAISON 6 PIÈCES NEUVE En vente : à quelques kilomètres du Mans, notre agence Maine Construction Saint-Saturnin est ravie de vous proposer, bénéficiant d'un emplacement privilégié dans Aigné (72650), cette maison de 6 pièces de 108 m² et de 471 m² de terrain. Son intérieur est composé de quatre chambres, d'une cuisine et de deux salles de bains. Cette maison compte 2 niveaux. Elle est neuve. La propriété est située dans un quartier recherché. Il y a l'École Primaire Publique Roger Bazille à moins de 10 minutes à pied. Niveau transports, on trouve quatre gares à moins de 10 minutes en voiture. Il y a un accès à l'autoroute A11 à 4 km. Il y a un tennis à quelques minutes. Elle est proposée à l'achat pour 299 000 €. Prenez contact avec notre agence (Luc LIVET : 07-77-76-37-30) pour toute question sur la maison ou sur les modalités de vente. Concrétisez vos projets immobiliers avec Maine Construction Saint-Saturnin.