

- Prix
- 181 000 €
Maison neuve • Saintes (17)
- Nom et prix
- Terrain à bâtir Saintes (17100) • 181 000 €
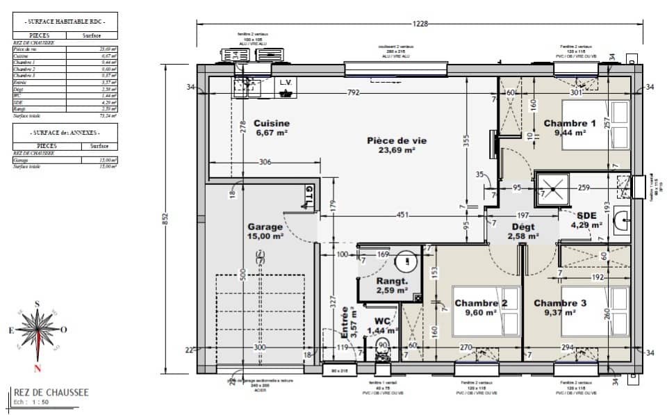
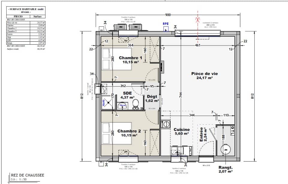
VENTE : maison T4 (65 m²) à Pessines EMPLACEMENT PRIVILÉGI- MAISON 4 PIÈCES NEUVE À vendre : localisée à 27 km de l'océan Atlantique et à deux pas de Saintes, nous sommes heureux de vous présenter, bénéficiant d'un emplacement d'exception dans Pessines (17810), cette maison de 4 pièces de plain-pied de 65 m² et de 546 m² de terrain. Elle compte deux chambres, une cuisine et une salle de bains. La maison est neuve. La maison est située dans un quartier convoité. On trouve le Lycée Général Privé Hors Contrat la Passerelle et le Collège Privé Alternatif Hors Contrat la Passerelle à moins de 10 minutes à pied. Côté transports, il y a la gare Saintes à moins de 10 minutes en voiture. L'autoroute A10 et les nationales N150, N137 et N141 sont accessibles à moins de 9 km. On trouve une bibliothèque à quelques minutes à peine. Son prix de vente est de 181 000 €. Prenez contact avec notre agence (ROUMY Laurent : O6-79-06-63-44) pour plus de renseignements sur la maison.











