

- Prix
- 380 000 €
Maison neuve • Pontarmé (60)
- Nom et prix
- Terrain à bâtir () • 380 000 €
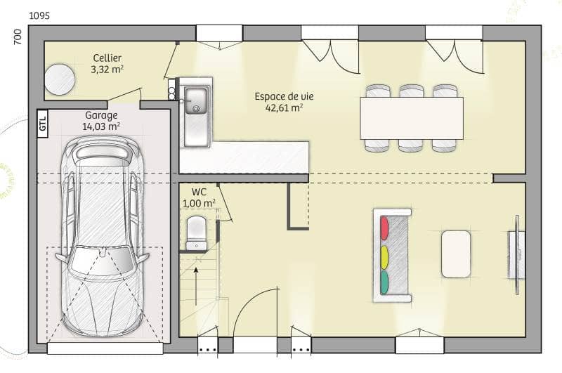
Venez concevoir votre maison sur la charmante Commune de PONTARME de 410 m² de surface habitable, façade de 14.30 ml, plat, secteur pavillonnaire recherché. Exemple de projet maison de type R+Combles de 105 m² loi Carrez. AU RDC : Bel espace de vie traversant de plus de 40.27 m², 1 chambre parentale avec dressing et SDE, 1 wc indépendant, à l'étage palier desservant 3 belles chambres, 1 salle de bain avec WC. Tous nos projets sont entièrement réalisés sur-mesure, de nombreuses prestations incluses: baies coulissantes en aluminium, volets roulants intégrés à la maçonnerie (non-apparents) motorisés. Entrée, cuisine, pièce de vie, cellier et pièces d'eau carrelés, Pompe à chaleur AIR/EAU ou AIR/AIR, dernière génération (classe énergétique A+), plancher chauffant RDC (et ETAGE), sèche-serviettes, plusieurs choix de menuiseries intérieures, construction en brique. RE 2020. Pour tout renseignement contacter l'agence Maisons France Confort de COMPIEGNE : 06/16/27/53/27.










