

- Prix
- 491 000 €
Maison neuve • Ferrières-en-Brie (77)
- Nom et prix
- Terrain à bâtir () • 491 000 €
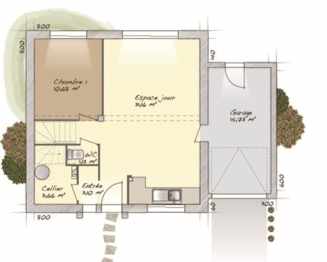
VENTE d'une maison de 6 pièces (98 m²) à Ferrières-en-Brie PROCHE DE PARIS - MAISON 6 PIÈCES NEUVE En vente : à deux pas de la station Bussy-Saint-Georges (Paris à 25 min avec le RER A), découvrez cette maison de 6 pièces de 98 m² et de 400 m² de terrain à Ferrières-en-Brie (77164). C'est une maison de 2 niveaux. Elle est composée de quatre chambres, d'une cuisine et d'une salle de bains. La maison est neuve. On trouve l'École Maternelle la Taffarette et l'École Élémentaire la Taffarette à moins de 10 minutes à pied et une crèche. Niveau transports, il y a les lignes A et E du RER ainsi que huit gares à moins de 10 minutes en voiture. On trouve une bibliothèque, un bowling, des boulangeries, trois commerces, un bureau de poste et deux épiceries à proximité du bien. Elle est proposée à l'achat pour 491 000 €. N'hésitez pas à prendre contact avec notre agence (MONTANIER Aurelien : 06-24-66-88-34) pour plus de renseignements sur cette maison ou sur les modalités de vente. Maisons Balency Saint-Maur-des-Fossés vous accompagne dans tous vos projets immobiliers et dans toutes vos démarches.