

- Prix
- 312 950 €
Maison neuve • Trilport (77)
- Nom et prix
- Terrain à bâtir () • 312 950 €
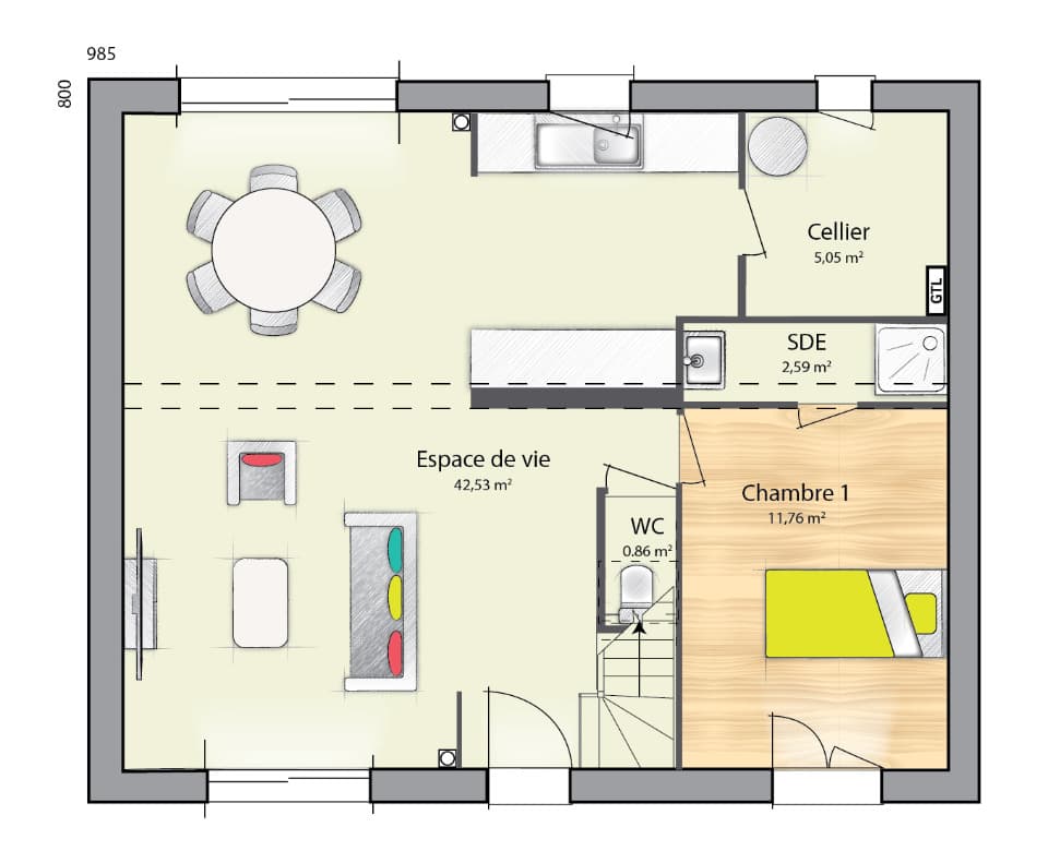
Contactez Guillaume Bordes de l'agence Maisons Evolution de Mareuil-lès-Meaux au 06.22.93.94.71 pour avoir plus d'informations sur ce projet. Jolie maison traditionnelle à étage de 102 m² habitables idéalement située sur la commune de Trilport. Elle se compose de 5 chambres au total (dont une au rez-de-chaussée) de 2 salles de bains, de 2 WC et d'un grand salon-séjour lumineux avec cuisine ouverte. Les plans sont modifiables selon vos souhaits, en agence ou visioconférence. Nous vous proposons un véritable accompagnement de qualité tout au long de votre projet. Dessinons ensemble votre future maison ! Tel: 06.22.93.94.71











