

- Prix
- 255 000 €
Maison neuve • Etampes (91)
- Nom et prix
- TERRAIN+MAISON A ETAMPES • 255 000 €
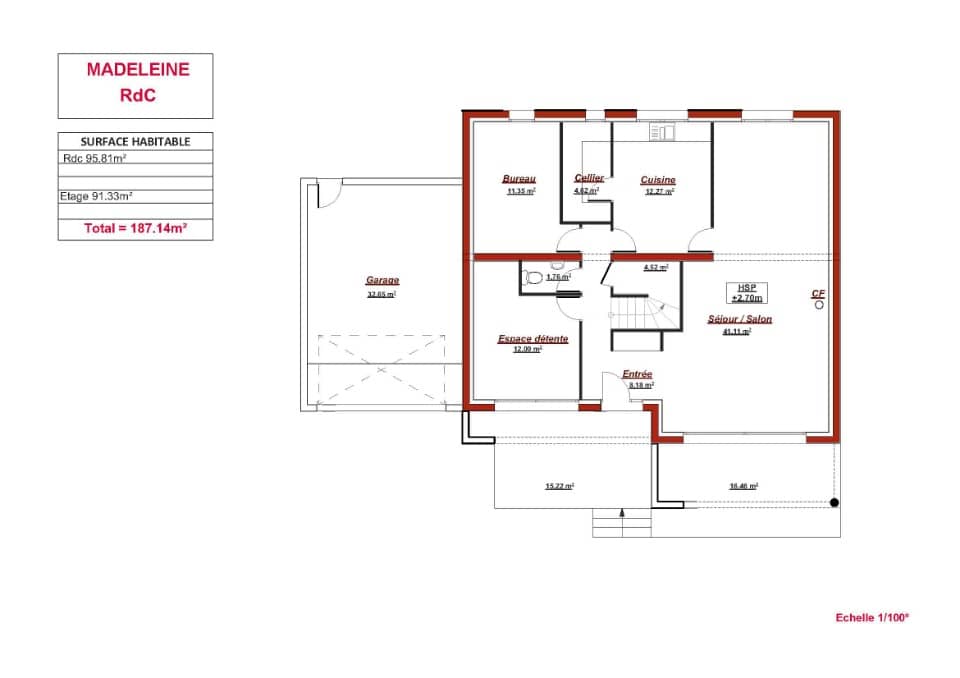
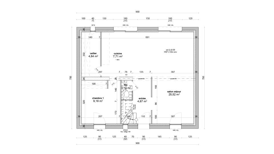
EXCLUSIVITÉ !!Pour plus de renseignements, veuillez contacter votre conseiller Mr MANG AU 06/17/48/36/76 Maisons Still vous propose de construire votre maison clés en main. A voir rapidement un Beau terrain A ETAMPES . Qui pourra accueillir plusieurs types de construction selon vos besoins et vos envies. GARE ET Écoles et Commerces à proximité ainsi que toutes les commodités nécessaires. Conçue autour d'un volume à étage, cette belle maison familiale saura vous séduire par son architecture contemporaine et son aménagement évolutif. Cette MAISON est composée au rez-de-chaussée d'un grand espace de vie d'environ 40 m², avec de grandes ouvertures et d'une arrière-cuisine communiquant sur un garage. Son étage pourra se décliner soit avec 4 chambres et une salle de bains, de 3 chambres dont une suite parentale. Libre à vous de choisir quel aménagement saura le mieux convenir à votre mode de vie. Cette maison est à construire .Pour plus d'informations ou pour prendre RDV, A très vite pour une visite Terrain sélectionné et vu pour vous sous réserve de disponibilité et au prix indiqué par notre partenaire foncier. Visuels non contractuels.













