

- Prix
- 344 320 €
Maison neuve • Chaumontel (95)
- Nom et prix
- Terrain à bâtir Chaumontel (95270) • 344 320 €
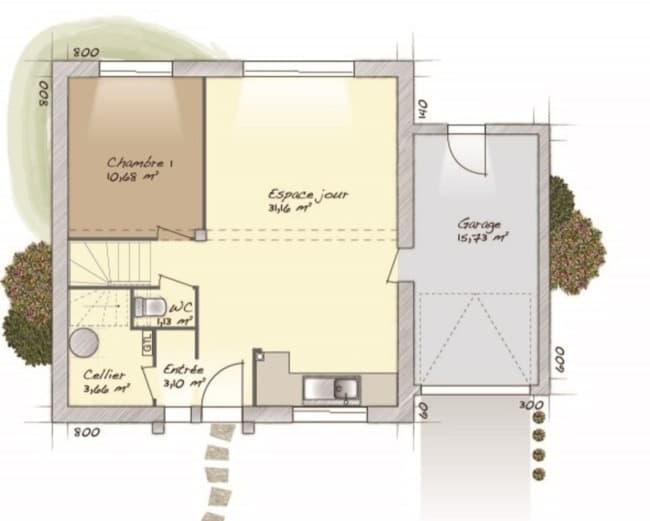
Chaumontel : maison de 6 pièces (102 m²) à vendre IDÉALEMENT SITUÉE - MAISON 6 PIÈCES NEUVE À deux pas de la gare de Luzarches (Paris à 45 min par le Transilien H), Maisons Balency Pierrelaye vous présente à vendre, idéalement située dans Chaumontel (95270), cette maison de 6 pièces de 102 m² et de 400 m² de terrain avec vue sur jardin. Son intérieur compte quatre chambres, une cuisine et une salle de bains. Il s'agit d'une maison de 2 niveaux. Elle est neuve. Le bien se trouve dans un quartier attractif. L'École Élémentaire Val d'Ysieux et l'École Maternelle Chaumontel sont implantées à moins de 10 minutes à pied. Côté transports en commun, on trouve la ligne de RER D (Orry-La-Ville-Coye) ainsi que 13 gares à moins de 10 minutes en voiture. Il y a une bibliothèque, un tennis, deux supermarchés, des commerces, deux boulangeries, une épicerie et une boucherie-charcuterie à proximité. Il est proposé à l'achat pour 344 320 €. Contactez notre agence (TALAMONI Christophe : 06-49-55-08-27) pour plus d'informations sur la maison ou sur les modalités de vente. Maisons Balency Pierrelaye vous accompagne dans tous vos projets immobiliers et dans toutes vos démarches.