

- Prix
- 439 042 €
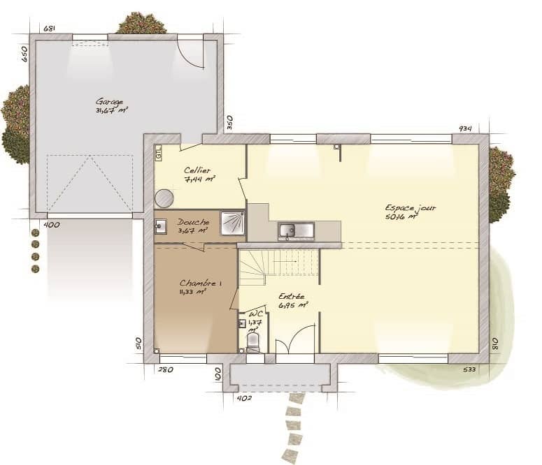
Maison neuve • Houilles (78)
- Nom et prix
- Terrain à bâtir () • 439 042 €
Quartier pavillonnaire des belles vues, terrain de 160 m². Projet de construction d'une maison de 99 m² comprenant au RDC une entrée, un cellier et un espace à vivre de plus de 37 m². A l'étage 3 chambres, une salle de bain et une buanderie. Projet à 439042 €, ce prix comprend les frais de notaires, la viabilité publique et les couts de terrassement privés. Il ne comprend pas les finitions intérieurs (Enduit / peinture, le carrelage et le parquet). Plans et chiffrage disponible à mon agence, contactez Rosario au 06/12/60/31/24













