

- Prix
- 392 000 €
Maison neuve • Pontoise (95)
- Nom et prix
- Terrain à bâtir () • 392 000 €
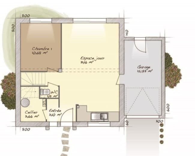
VENTE d'une maison de 6 pièces (98 m²) à Pontoise MAISON 6 PIÈCES NEUVE À vendre : à proximité du Transilien J (gare d'Osny, 40 min de Paris), découvrez cette maison de 6 pièces de 98 m² et de 355 m² de terrain à Pontoise (95300). Cette maison compte 2 niveaux. Son intérieur se divise en quatre chambres, une cuisine et une salle de bains. Cette maison est neuve. Une école élémentaire est implantée dans le quartier. Niveau transports en commun, il y a les lignes C et A du RER ainsi que 23 gares à moins de 10 minutes en voiture. Elle est à vendre pour la somme de 392 000 €. Contactez notre agence (Denis DUCOS : 06-80-06-50-40) pour tout renseignement sur la maison ou sur les modalités de vente.











