

- Prix
- 324 520 €
Maison neuve • Nesles-la-Vallée (95)
- Nom et prix
- Terrain à bâtir Nesles-la-Vallée (95690) • 324 520 €
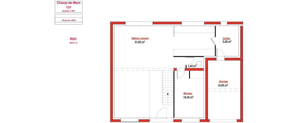
L'Isle-Adam : maison de 4 pièces (50 m²) en vente MAISON 4 PIÈCES NEUVE - PROCHE DE PARIS À vendre : à deux pas du Transilien H (gare de L'Isle-Adam-Parmain, 50 min de Paris), laissez vous charmer par à L'Isle-Adam (95290), cette maison de 4 pièces de plain-pied de 50 m² et de 500 m² de terrain. Son intérieur est composé de deux chambres, d'une cuisine et d'une salle de bains. Cette maison est neuve. L'École Élémentaire Parc de Cassan et l'École Maternelle Chantefleur sont implantées à moins de 10 minutes à pied. Niveau transports, il y a 23 gares à moins de 10 minutes en voiture. On trouve une bibliothèque, deux commerces, un supermarché, une boulangerie et trois boucheries-charcuteries à proximité du logement. Elle est à vendre pour la somme de 324 520 €. N'hésitez pas à prendre contact avec Christophe TALAMONI (tél : 06-49-55-08-27) pour obtenir de plus amples renseignements sur la maison. Maisons Balency Pierrelaye est là pour vous accompagner dans tous vos projets immobiliers.











