

- Prix
- 240 000 €
Maison neuve • Noyers-Bocage (14)
- Nom et prix
- Terrain à bâtir () • 240 000 €
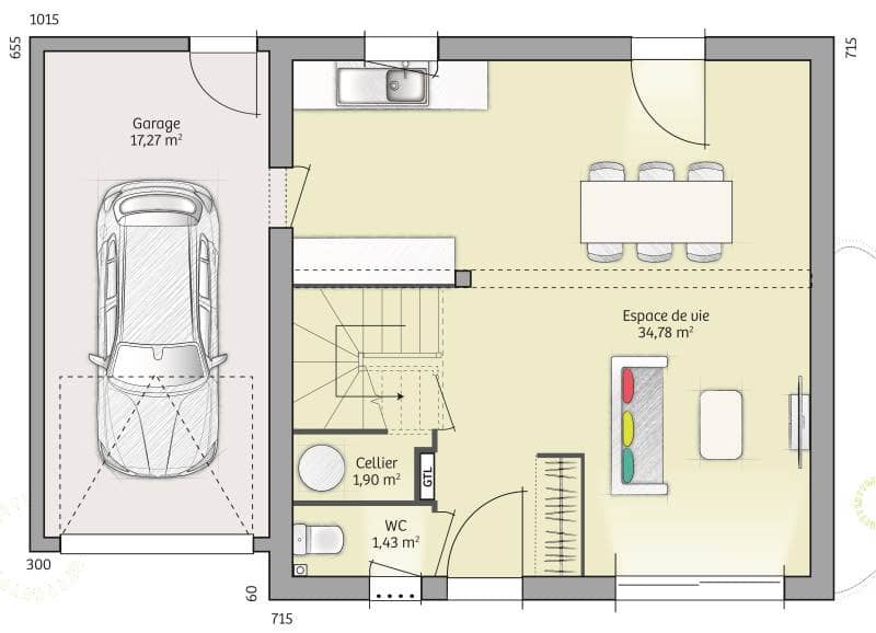
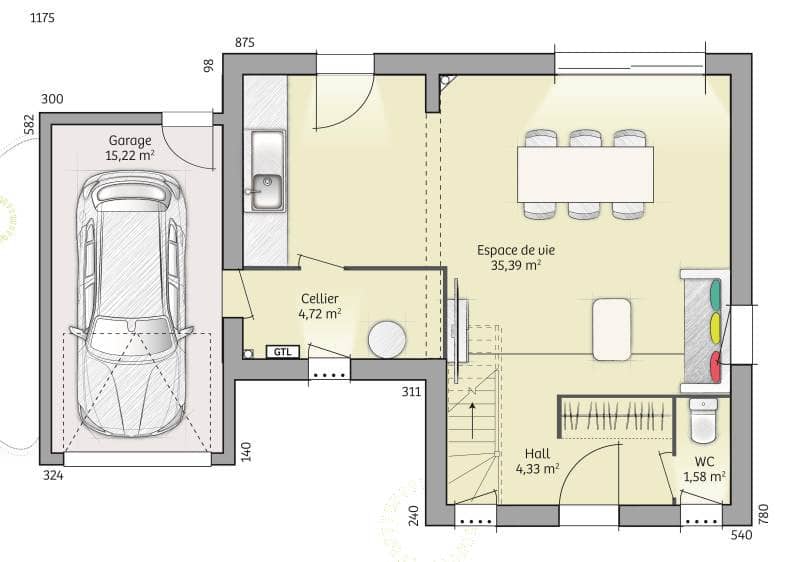
VENTE : maison T5 (90 m²) à Noyers-Bocage MAISON 5 PIÈCES NEUVE - PROCHE DE CAEN À vendre : à 25 km de la Manche et à quelques kilomètres de Caen, notre agence Maisons Balency Caen est ravie de vous proposer cette maison de 5 pièces de plain-pied de 90 m² à Noyers-Bocage (14210). Elle dispose de trois chambres, d'une cuisine et d'une salle de bains. Cette maison est neuve. Le terrain du bien est de 400 m². Il y a l'École Primaire Noyers Bocage à moins de 10 minutes à pied. Niveau transports en commun, on trouve la gare Bretteville-Norrey à moins de 10 minutes en voiture. Il y a un accès à l'autoroute A84 à 1 km. Il y a une bibliothèque, une boulangerie, une épicerie et une boucherie-charcuterie à quelques minutes. Elle est à vendre pour la somme de 240 000 €. N'hésitez pas à prendre contact avec Francois LAMY (tél : 06-35-39-35-17) pour toute question sur la maison, sur les démarches à suivre ou sur les modalités de vente. Donnez vie à vos projets immobiliers avec Maisons Balency Caen.










