
- Prix
- 314 500 €
Maison neuve • Béhoust (78)
- Nom et prix
- Terrain à bâtir Béhoust (78910) • 314 500 €
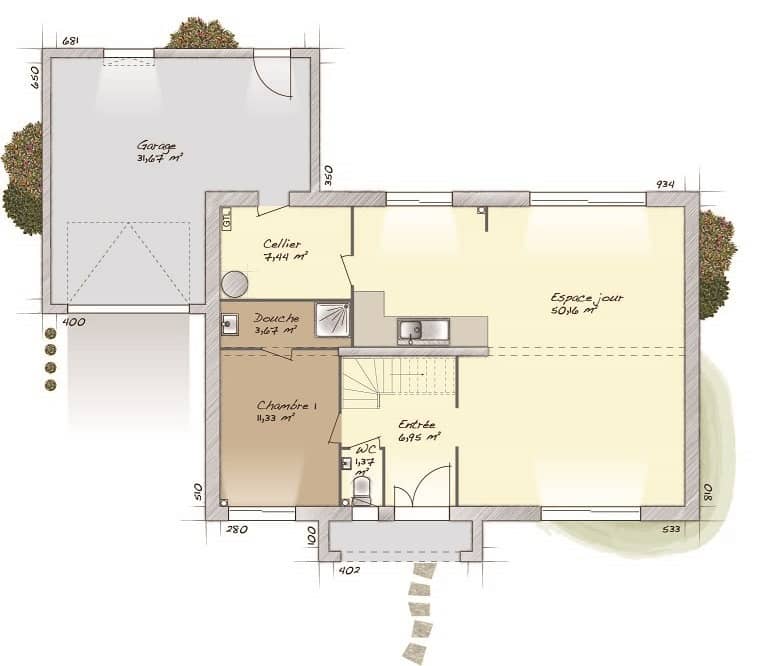
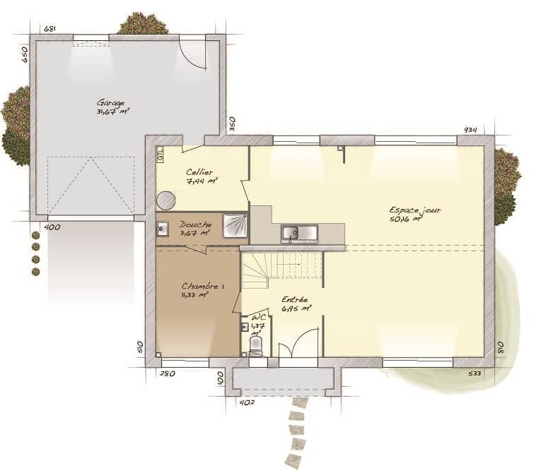
VENTE : maison F4 (88 m²) à Béhoust EMPLACEMENT PRIVILÉGI- MAISON 4 PIÈCES NEUVE Au pied du Transilien N (gare d'Orgerus-Béhoust, 45 min de Paris), votre agence Les Maisons Extraco Chambourcy est ravie de vous proposer à vendre, bénéficiant d'un emplacement d'exception dans Béhoust (78910), cette maison de 4 pièces de 88 m². C'est une maison de 2 niveaux. Elle propose trois chambres, une cuisine et une salle de bains. La maison est neuve. Le terrain du bien s'étend sur 719 m². La propriété se situe dans un quartier attractif. L'École Élémentaire du Bois de Houx est implantée à moins de 10 minutes à pied. Niveau transports en commun, il y a cinq gares à moins de 10 minutes en voiture. On trouve un tennis, un commerce et un supermarché à proximité de la maison. Elle est proposée à l'achat pour 314 500 €. Contactez Gilles BOREAU (01-30-65-11-55) pour tout renseignement sur la maison, sur les modalités de vente ou sur les démarches à suivre. Les Maisons Extraco Chambourcy est là pour vous accompagner à toutes les étapes de l'achat.











