

- Prix
- 212 000 €
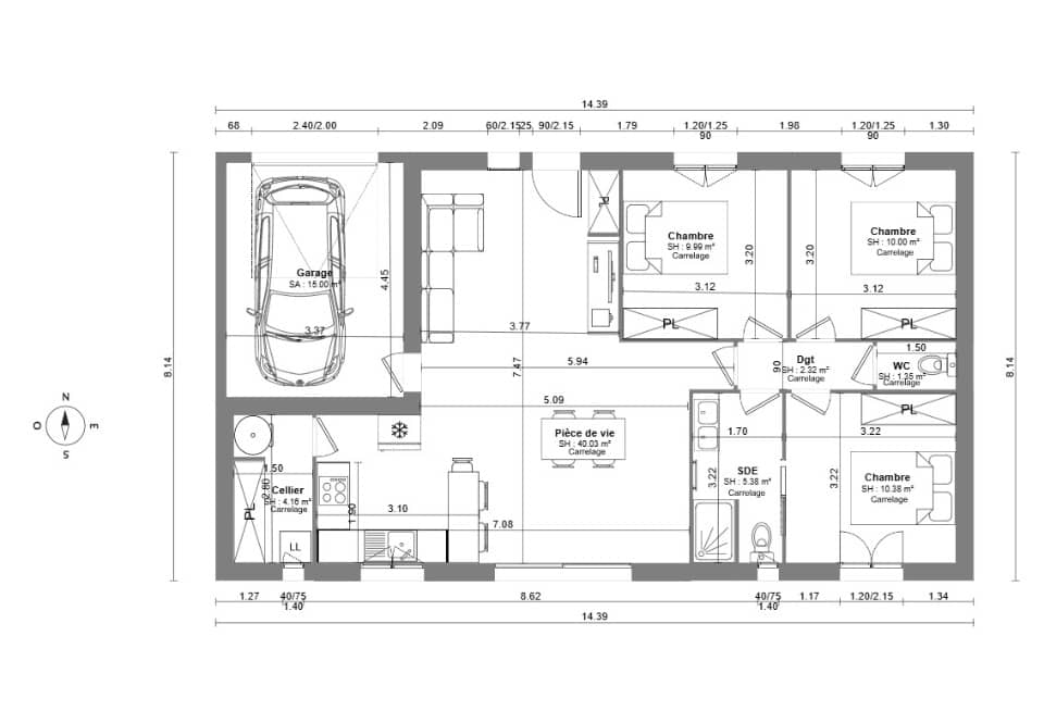
Maison neuve • Magalas (34)
- Nom et prix
- Terrain à bâtir () • 212 000 €
PROJET DE CONSTRUCTION - Maison de 3 pièces (70 m²) à Magalas MAISON 3 PIÈCES - PROCHE DE BÉZIERS À 26 km de la mer Méditerranée et à quelques kilomètres de Béziers, en vente à Magalas (34480), laissez vous charmer par cette maison de 3 pièces de plain-pied de 70 m². Elle comporte deux chambres, une cuisine, un cellier, une salle de bains et un garage. Le terrain du bien s'étend sur 333 m². (Carrelage inclus dans toutes les pièces / Raccordements inclus). Il y a le Collège les Arbourys, l'École Élémentaire Capitaine Bonnet et l'École Maternelle les Petits Grains à moins de 10 minutes à pied. Niveau transports en commun, on trouve la gare Magalas dans les environs. Les autoroutes A75 et A9 sont accessibles à moins de 16 km. Il y a un tennis, deux commerces, une boulangerie, un bureau de poste et une supérette à proximité de la maison. Elle est proposée à l'achat pour 212 000 €. Pour plus d'information contacter (Anthony BALLESTER : 06.27.21.51.55) Maisons France Confort Béziers pour échanger sur votre projet et réaliser une étude gratuite. (Plan personnalisable). Tous nos ouvrages sont réalisés sur-mesure en fonction de vos attentes et de nos échanges avec vous ainsi que dans le respect de la règlementation RE 2020. Ce projet comporte les garanties suivantes: Contrat de construction CCMI. Dommage/Ouvrage. RC Garantie décennale. Parfaite achèvement. Etude de sol G2. Prix et délais convenu. Garantie financière Pour votre tranquillité nous nous occupons de toutes les formalités administratives.

