logo de nos-terrains.com

467 maisons neuves à vendre à Fonbeauzard (31) (entre 150,000 € et 250,000 €)

Résultats de recherche

Maison neuve - Terrain à bâtir Saint-Rustice (31620) à Saint-Rustice (31), prix 245 707 €
245 707 €
75 m²
3276 €/m²

Maison neuveSaint-Rustice (31)

L'agence Maisons France Confort d'AUCAMVILLE vous présente ce projet de construction personnalisé à ce terrain aux dernières normes (RE 2020) sur la commune de St RUSTICE . Conception traditionnelle de plain-pied et entièrement personnalisable. Sur une parcelle de 900 m², le modèle proposé est OPTIMA 75. Il se compose d'un espace séjour/cuisine de 35 m² donnant accès à un cellier, de 3 chambres, une salle de bains et un WC indépendant. Un garage de 14m² est intégré à la maison. La surface habitable est de 75 m². Dans un environnement calme et agréable à proximité des commodités. Toulouse vous sera accessible en 25 minutes. Contactez l'agence Maisons France Confort d'AUCAMVILLE au 05 34 43 84 38 . PRIX : 245 707 € HF

Proposé par Maisons FRANCE CONFORT - Béziers

Maison neuve - Terrain à bâtir Brax (31490) à Brax (31), prix 241 789 €
241 789 €
50 m²
4836 €/m²

Maison neuveBrax (31)

Brax : maison T3 (50 m²) à vendre avec l'agence Maisons France Confort de Tournefeuille au 05.61.16.47.77 PROCHE GARE - MAISON 3 PIÈCES NEUVE À quelques kilomètres de Toulouse, Maisons France Confort Tournefeuille vous présente en vente, proche de la gare de Brax (31490), cette maison de 3 pièces de plain-pied de 50 m² et de 500 m² de terrain. Conçue de plain-pied, elle inclut deux chambres, une cuisine et une salle de bains. Cette maison est neuve. On trouve une école primaire dans le quartier. Niveau transports en commun, il y a la gare Brax-Léguevin à moins de 10 minutes à pied. On trouve un accès à la nationale N124 à 4 km. On trouve un tennis, une bibliothèque, un commerce, deux boulangeries, une boucherie-charcuterie et une supérette dans les environs. Son prix de vente est de 241 789 €. Prenez contact avec l'agence Maisons France Confort de Tournefeuille au 05.61.16.47.77 pour plus de renseignements sur la maison ou sur les modalités de vente.

Proposé par Maisons FRANCE CONFORT - Béziers

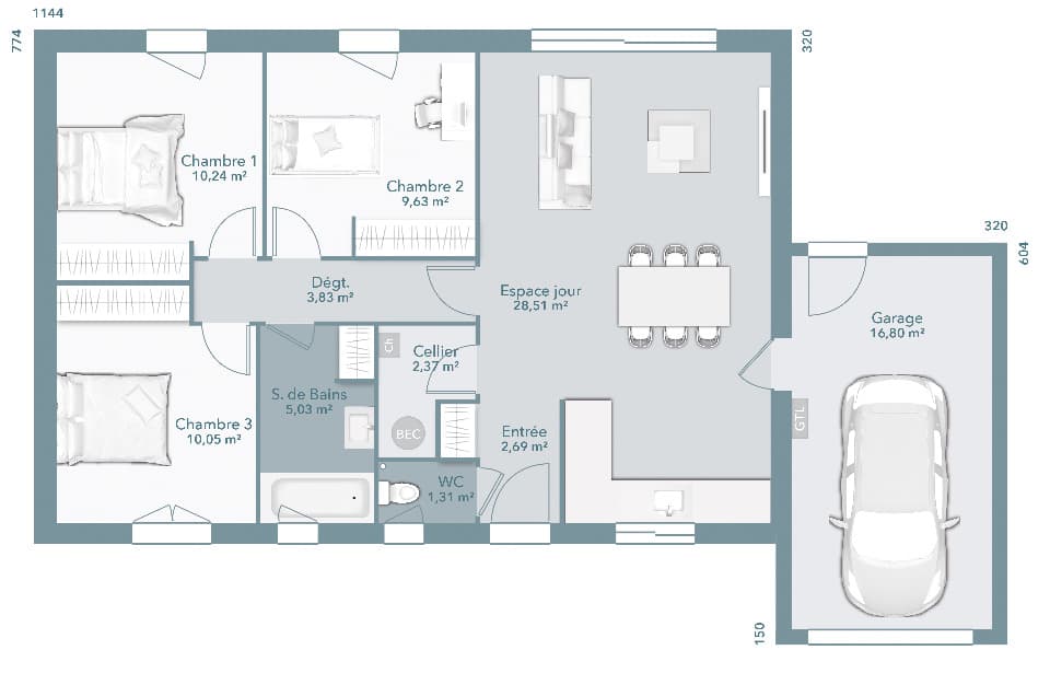
Maison neuve - Projet de construction d'une maison 106 m² avec terrain à SAINT-ORENS-DE-GAMEVILLE (31) au prix de 311350€. à rue Marvingt (31), prix 167 350 €
167 350 €
106 m²
1579 €/m²

Maison neuverue Marvingt (31)

Informations du terrain : livré et viabilisé - en face de la clinique SAINT-ORENS-DE-GAMEVILLE – Maison T5. Dans ce lieu paisible, proche des commerces et services, sur cette parcelle rare de 608 m², apportée par notre partenaire foncier, selon disponibilité, confiez votre projet à Villas et Maisons de France, constructeur régional expérimenté, écoresponsable et avec un process de haute qualité environnementale. Plans uniques conçus pour vous par nos dessinateurs-métreurs du bureau d'études spécialisé, oeuvrant dans nos locaux à 20 km de Toulouse. Alliant tradition et modernité, le modèle « Orion 106 », proposé ici, offre un aménagement intérieur de 106 m² habitables, dotés, au RDC, d’un cellier/buanderie attenant à une cuisine ouverte sur un séjour lumineux et traversant de plus de 44m². A l’étage, la partie nuit se compose astucieusement de 4 chambres de 10 à 11 m², d’une salle de bains et d'un WC séparé. Certifié Properméa et avec un process de haute qualité environnementale, Villas et Maisons de France réduit l’empreinte carbone de votre construction. RE 2020, étiquette énergie A, qualité du traitement de l’étanchéité à l’air, tri sélectif et valorisation des déchets sont garantis et contrôlés. Un interlocuteur unique vous assistera dans vos démarches (financement, permis de construire et acte authentique d’acquisition du terrain). Votre Espace Client Privilège vous permettra de suivre, en temps réel et en images, chaque étape des travaux. Pour votre sérénité, notre Contrat de Construction de Maison Individuelle CCMI, vous confère garantie de livraison, assurance décennale dommages ouvrage, garantie de bon fonctionnement et de parfait achèvement. Construire durable c’est aussi choisir un constructeur 100% régional, contacter Arnaud MERCIER au 06 20 74 42 73, spécialiste de la maison sur-mesure. Prix avec assurance dommages-ouvrage comprise, VRD non compris, terrain viabilisé, frais de notaire non compris, frais divers non compris. Terrain sélectionné et vu pour vous sous réserve de disponibilité et au prix indiqué par notre partenaire foncier. Plans contractuels, visuels non contractuels. Cette annonce a été créée et diffusée avec le logiciel VITAHOME. Contactez Arnaud MERCIER au 06 20 74 42 73 ou au 05 34 48 00 00 (Villas et Maisons de France).

Proposé par VILLAS ET MAISONS DE FRANCE

Maison neuve - Terrain à bâtir Ondes (31330) à Ondes (31), prix 215 987 €
215 987 €
90 m²
2400 €/m²

Maison neuveOndes (31)

Terrain Viabilisé d'environ 550 m² + Maison Natura 90 à Construire près d'Ondes - Le Confort Naturel avec Maisons France Confort ! Sur ce terrain plat, viabilisé et idéalement situé, découvrez le modèle Natura 90. Avec ses 90 m², cette maison moderne et respectueuse de l'environnement offre 3 chambres, une belle pièce de vie lumineuse, un garage et des finitions soignées. Parfait pour allier confort, économie d'énergie et design contemporain. Pourquoi choisir Maisons France Confort ? Le leader incontesté de la construction de maisons individuelles en France Modèle Natura 90 : conception écologique, performance énergétique et confort optimal Accompagnement personnalisé : de l'étude de financement à la remise des clés Qualité et sécurité : un suivi rigoureux pour garantir la réussite de votre projet Prix terrain+ maison: 215 987€ hf N'attendez plus pour concrétiser votre rêve ! Contactez-nous dès aujourd'hui pour une étude gratuite et découvrez comment Maisons France Confort peut transformer votre projet en réalité. Contactez l'agence MAISONS FRANCE CONFORT d'Aucamville au 05.34.43.84.38.

Proposé par MAISONS FRANCE CONFORT - AUCAMVILLE

Maison neuve - Terrain à bâtir Ondes (31330) à Ondes (31), prix 246 146 €
246 146 €
125 m²
1969 €/m²

Maison neuveOndes (31)

Votre Première Maison avec Maisons France Confort ! Vous êtes jeune, dynamique et prêt à devenir propriétaire ? Ce terrain plat d'environ 550 m², viabilisé, situé près d'Ondes, est l'opportunité que vous attendiez ! Et pour y construire la maison de vos rêves, découvrez le modèle Optima 125 : 125 m² de confort, design moderne et prix attractif. Avec 4 chambres, 1 bureau, une grande pièce de vie ouverte et un garage intégré, cette maison est pensée pour vous offrir espace, liberté et praticité. Pourquoi choisir Maisons France Confort ? Le leader de la construction de maisons individuelles en France, pour un projet sans mauvaise surprise ! Optima 125 : un modèle tendance et fonctionnel, idéal pour une première maison avec des matériaux performants. Accompagnement sur-mesure : du financement à la remise des clés, nous sommes là à chaque étape pour vous simplifier la vie. Un projet clé en main : construction rapide, gestion complète et tranquillité d'esprit garantie. Ce projet, c'est l'occasion de poser les bases de votre avenir et de concrétiser vos envies de propriétaire. Prix terrain+ maison: 246 146€ hf Contactez-nous dès maintenant pour une étude gratuite et découvrez pourquoi Maisons France Confort est le partenaire idéal pour réaliser votre rêve immobilier ! Contactez l'agence MAISONS FRANCE CONFORT d'Aucamville au 05.34.43.84.38.

Proposé par MAISONS FRANCE CONFORT - AUCAMVILLE

Maison neuve - Terrain à bâtir Ondes (31330) à Ondes (31), prix 215 941 €
215 941 €
85 m²
2540 €/m²

Maison neuveOndes (31)

Terrain viabilisé d'environ 550 m² + Maison Optima 85 Garage Intégré à construire vers Ondes - Votre Première Maison, Parfaitement Pensée pour Vous ! Envie de devenir propriétaire sans compromis ? Ce terrain plat, viabilisé, à proximité d'Ondes, est l'endroit idéal pour réaliser votre projet immobilier ! Avec le modèle Optima 85 Garage Intégré, vous optez pour une maison de 85 m², pratique et fonctionnelle. 3 chambres, un grand séjour lumineux, et un garage intégré pour plus de commodité au quotidien. Pourquoi choisir Maisons France Confort ? Le leader de la construction de maisons individuelles en France, pour un projet sûr et sans stress ! Optima 85 Garage Intégré : un modèle compact, moderne et optimisé pour répondre à vos besoins, avec un garage intégré pour plus de praticité. Accompagnement total : nous vous guidons de A à Z, du financement à la remise des clés, pour que votre projet soit simple et réussi. Un projet clé en main : une construction rapide et un suivi personnalisé, pour que vous profitiez de votre maison sans souci. C'est le moment de réaliser votre rêve ! Prix terrain+ maison: 215 941€ hf Contactez-nous dès aujourd'hui pour une étude gratuite et découvrez pourquoi Maisons France Confort est le partenaire idéal pour votre première maison ! Agence MAISONS FRANCE CONFORT d'Aucamville au 05.34.43.84.38.

Proposé par MAISONS FRANCE CONFORT - AUCAMVILLE

Maison neuve - Terrain à bâtir Ondes (31330) à Ondes (31), prix 233 618 €
233 618 €
100 m²
2336 €/m²

Maison neuveOndes (31)

Votre maison sur un terrain de rêve vers Ondes ! Terrain plat d'environ 550 m² + Maison Performa 100 = votre projet clé en main ! Construisez la maison de vos rêves dans un cadre calme et verdoyant, à deux pas de Toulouse et/ou Montauban. Avec le modèle Performa 100, vous profitez d'une maison moderne et fonctionnelle : 3 chambres, vaste séjour lumineux et cuisine ouverte ainsi qu'un garage. Maisons France Confort, leader de la construction en France, vous accompagne dans toutes les étapes de votre projet, du terrain à la remise des clés. Profitez d'un financement adapté et des garanties. Ne manquez pas cette opportunité unique vers Ondes ! Prix terrain + maison: 233 618€ hf Contactez-nous vite pour plus d'informations à l'agence MAISONS FRANCE CONFORT d'Aucamville au 05.34.43.84.38

Proposé par MAISONS FRANCE CONFORT - AUCAMVILLE

Maison neuve - Terrain à bâtir Ondes (31330) à Ondes (31), prix 182 828 €
182 828 €
73 m²
2504 €/m²

Maison neuveOndes (31)

Terrain Viabilisé d'environ 550 m² + Maison Actua 73 à Construire vers Grenade - Votre Projet Clé en Main ! Sur ce terrain plat , entièrement viabilisé, à proximité de Grenade, réalisez votre rêve avec la maison Actua 73. Ce modèle moderne de 73 m², avec 3 chambres et un garage, offre un confort optimal à un prix compétitif. Pourquoi choisir Maisons France Confort groupe Hexaom ? Terrain prêt à construire Maison personnalisée et fonctionnelle Accompagnement complet : du financement à la construction Expertise du leader Hexaom : qualité, réactivité et sécurité de votre projet Prix terrain+ maison: 182 828€ hf Ne laissez pas passer cette chance de devenir propriétaire ! Contactez-nous dès maintenant pour une étude personnalisée et démarrez votre projet en toute sérénité : Agence MAISONS FRANCE CONFORT d'Aucamville au 05.34.43.84.38.

Proposé par MAISONS FRANCE CONFORT - AUCAMVILLE

Maison neuve - Projet de construction d'une maison 100 m² avec terrain à PLAISANCE-DU-TOUCH (31) au prix de 284 000 €. à 10 avenue de la Casse (31), prix 159 000 €
159 000 €
99 m²
1606 €/m²

Maison neuve10 avenue de la Casse (31)

Terrain plat, rectangulaire, viabilisé et raccordable au tout à l'égout. Travaux terminés et finitions parfaites. Dépôt de permis immédiat. Confiez la construction de votre maison à Villas et Maisons de France, un constructeur reconnu et certifié NF Habitat HQE. Venez découvrir les coulisses de la conception de votre maison et rencontrez les dessinateurs-métreurs de notre bureau d'étude, spécialiste de la maison individuelle, basés dans nos locaux, à Toulouse ou à Bordeaux. Projet ambitieux ou petite maison traditionnelle, vos plans seront ajustés à votre convenance et respecteront votre budget. Innovant et actuel, le modèle Andromèda proposé ici, de 100 m² habitables, comprend une partie jour dotée d'une grande pièce de vie lumineuse, agrémentée d'une cuisine ouverte avec cellier accolé. Côté nuit, le confort est assuré par 3 chambres dont une suite parentale ergonomique, une salle de bain spacieuse et des WC séparés. Conception de Haute Qualité Environnementale, Villas et Maisons de France réduit l’empreinte carbone de votre construction. RE 2020, étiquette énergie A, qualité du traitement de l’étanchéité à l’air, tri sélectif et valorisation des déchets sont garantis et contrôlés. Votre interlocuteur dédié vous assistera dans vos démarches (financement, permis de construire et acte authentique d’acquisition du terrain). Dès l'ouverture de votre chantier, suivez en temps réel et en images, l'avancement de vos travaux avec votre Espace Client Privilège. Notre Contrat de Construction de Maison Individuelle vous confère Garantie de Livraison, Assurance Décennale Dommages Ouvrage, Garantie de Parfait Achèvement et Biennale. Pour une construction sûre et durable, contacter Arnaud MERCIER au 06 20 74 42 73, spécialiste de la Maison sur-mesure. Prix avec assurance dommages-ouvrage comprise, VRD non compris, terrain viabilisé, frais de notaire non compris, frais divers non compris. Terrain sélectionné et vu pour vous sous réserve de disponibilité et au prix indiqué par notre partenaire foncier. Conditions et visuels non contractuels. Cette annonce a été créée et diffusée avec le logiciel VITAHOME. Contactez Arnaud MERCIER au 06 20 74 42 73 ou au 05 34 48 00 00 (Villas et Maisons de France).

Proposé par VILLAS ET MAISONS DE FRANCE

Maison neuve - Projet de construction d'une maison 100 m² avec terrain à PLAISANCE-DU-TOUCH (31) au prix de 284 000 €. à 10 avenue de la Casse (31), prix 159 000 €
159 000 €
99 m²
1606 €/m²

Maison neuve10 avenue de la Casse (31)

Terrain plat, rectangulaire, viabilisé et raccordable au tout à l'égout. Travaux terminés et finitions parfaites. Dépôt de permis immédiat. Confiez la construction de votre maison à Villas et Maisons de France, un constructeur reconnu et certifié NF Habitat HQE. Venez découvrir les coulisses de la conception de votre maison et rencontrez les dessinateurs-métreurs de notre bureau d'étude, spécialiste de la maison individuelle, basés dans nos locaux, à Toulouse ou à Bordeaux. Projet ambitieux ou petite maison traditionnelle, vos plans seront ajustés à votre convenance et respecteront votre budget. Innovant et actuel, le modèle Andromèda proposé ici, de 100 m² habitables, comprend une partie jour dotée d'une grande pièce de vie lumineuse, agrémentée d'une cuisine ouverte avec cellier accolé. Côté nuit, le confort est assuré par 3 chambres dont une suite parentale ergonomique, une salle de bain spacieuse et des WC séparés. Conception de Haute Qualité Environnementale, Villas et Maisons de France réduit l’empreinte carbone de votre construction. RE 2020, étiquette énergie A, qualité du traitement de l’étanchéité à l’air, tri sélectif et valorisation des déchets sont garantis et contrôlés. Votre interlocuteur dédié vous assistera dans vos démarches (financement, permis de construire et acte authentique d’acquisition du terrain). Dès l'ouverture de votre chantier, suivez en temps réel et en images, l'avancement de vos travaux avec votre Espace Client Privilège. Notre Contrat de Construction de Maison Individuelle vous confère Garantie de Livraison, Assurance Décennale Dommages Ouvrage, Garantie de Parfait Achèvement et Biennale. Pour une construction sûre et durable, contacter Arnaud MERCIER au 06 20 74 42 73, spécialiste de la Maison sur-mesure. Prix avec assurance dommages-ouvrage comprise, VRD non compris, terrain viabilisé, frais de notaire non compris, frais divers non compris. Terrain sélectionné et vu pour vous sous réserve de disponibilité et au prix indiqué par notre partenaire foncier. Conditions et visuels non contractuels. Cette annonce a été créée et diffusée avec le logiciel VITAHOME. Contactez Arnaud MERCIER au 06 20 74 42 73 ou au 05 34 48 00 00 (Villas et Maisons de France).

Proposé par VILLAS ET MAISONS DE FRANCE

Maison neuve - Projet de construction d'une maison 90 m² avec terrain à PLAISANCE-DU-TOUCH (31) au prix de 263200€. à 10 avenue de la Casse (31), prix 153 200 €
153 200 €
90 m²
1702 €/m²

Maison neuve10 avenue de la Casse (31)

Informations du terrain : Terrain plat, rectangulaire, viabilisé et raccordable au tout à l'égout. Travaux terminés et finitions parfaites. PLAISANCE-DU-TOUCH – Maison T4. Dans un lieu apaisant, très bien exposé et proche des commerces et services, cette parcelle recherchée de notre partenaire foncier, sous réserve de disponibilité, de 488 m², pourrait accueillir votre projet ! Villas et Maisons de France, constructeur régional expérimenté et avec un process de haute qualité environnementale, est spécialiste de la maison personnalisée écoresponsable. Participez activement à la conception de vos plans uniques et exclusifs en rencontrant les dessinateurs-métreurs de notre bureau d'études spécialisé, dans nos locaux, à Toulouse ou à Bordeaux. Traditionnel et élégant, le modèle Carène proposé ici, de 90 m² habitables, comprend une partie jour dotée d'une cuisine ouverte sur une pièce de vie lumineuse de 43 m². Côté nuit, le confort est assuré par 3 chambres dont une suite parentale ergonomique, une salle de bain spacieuse et des WC séparés. Un cellier/Buanderie apporte capacité de rangements et fonctionnalité. Certifié Properméa et avec un process de haute qualité environnementale, Villas et Maisons de France réduit l’empreinte carbone de votre construction. RE 2020, étiquette énergie A, qualité du traitement de l’étanchéité à l’air, tri sélectif et valorisation des déchets sont garantis et contrôlés. Un interlocuteur unique vous assistera dans vos démarches (financement, permis de construire et acte authentique d’acquisition du terrain). Votre Espace Client Privilège vous permettra de suivre, en temps réel et en images, chaque étape des travaux. Pour votre sérénité, notre Contrat de Construction de Maison Individuelle CCMI, vous confère garantie de livraison, assurance décennale dommages ouvrage, garantie de bon fonctionnement et de parfait achèvement. Construire durable c’est aussi choisir un constructeur 100% régional, contacter Arnaud MERCIER au 06 20 74 42 73. Prix avec assurance dommages-ouvrage comprise, VRD non compris, terrain viabilisé, frais de notaire non compris, frais divers non compris. Terrain sélectionné et vu pour vous sous réserve de disponibilité et au prix indiqué par notre partenaire foncier. Plans contractuels, visuels non contractuels. Cette annonce a été créée et diffusée avec le logiciel VITAHOME. Contactez Arnaud MERCIER au 06 20 74 42 73 ou au 05 34 48 00 00 (Villas et Maisons de France).

Proposé par VILLAS ET MAISONS DE FRANCE

Maison neuve - Projet de construction d'une maison 99 m² avec terrain à PLAISANCE-DU-TOUCH (31) au prix de 292300€. à PLAISANCE-DU-TOUCH (31), prix 157 300 €
157 300 €
99 m²
1589 €/m²

Maison neuvePLAISANCE-DU-TOUCH (31)

Alliant bien-vivre et praticité, la localisation de cette parcelle (apportée par notre partenaire foncier sous réserve de disponibilité), de 500 m², coche toutes les cases. Comme toute création Villas et Maisons de France. ce modèle Andromèda 99, aux lignes épurées et raffinées, est intégralement modulable par notre bureau d'étude interne et spécialisé. Notre version catalogue de 99 m² habitables comprend une partie jour dotée d'une très grande pièce de vie de plus de 43 m², à la luminosité optimale, agrémentée d'une cuisine ouverte avec cellier accolé. Côté nuit, le confort est assuré par 3 chambres dont une suite parentale ergonomique, une salle de bain spacieuse et des WC séparés. Avec un process de haute qualité environnementale, Villas et Maisons de France conçoit et construit votre maison sur-mesure en réduisant son empreinte carbone ; RE 2020, étiquette énergie A, tri sélectif et valorisation des déchets sont garantis. Notre label Properméa atteste de la qualité de notre traitement de l’étanchéité à l’air. Côté administratif, soyez accompagnés, par votre interlocuteur dédié, de l’accord de prêt à l’obtention du permis de construire en passant par l’acte authentique d’acquisition du terrain. Profitez gratuitement de notre espace Client Privilège. Notre Contrat de Construction de Maison Individuelle, CCMI, vous confère Garantie de Livraison, Assurance Décennale Dommages Ouvrage, Garantie de Parfait Achèvement et Biennale. Apportez votre pierre à l'édifice; optez pour un spécialiste de la construction durable avec process de haute qualité environnementale, Contacter Arnaud MERCIER au 06 20 74 42 73. Prix avec assurance dommages-ouvrage comprise, VRD non compris, terrain viabilisé, frais de notaire non compris, frais divers non compris. Terrain sélectionné et vu pour vous sous réserve de disponibilité et au prix indiqué par notre partenaire foncier. Conditions et visuels non contractuels. Cette annonce a été créée et diffusée avec le logiciel VITAHOME. Contactez Arnaud MERCIER au 06 20 74 42 73 ou au 05 34 48 00 00 (Villas et Maisons de France).

Proposé par VILLAS ET MAISONS DE FRANCE


Illustration Maisons neuves en vente à proximité de Fonbeauzard (31)

Maisons neuves en vente à proximité de Fonbeauzard (31)

**Fonbeauzard (31)** est une commune de Haute-Garonne, située à 10 km au nord-est de Toulouse, en bordure de la plaine de la Garonne. Proche des axes routiers (A68, RN88) et des zones d’activités, elle bénéficie d’un cadre de vie paisible tout en restant bien connectée. Son parc résidentiel récent et son environnement préservé en font un lieu prisé pour les familles. **Optez pour une maison neuve à Fonbeauzard** : accès facile à Toulouse, écoles de qualité et cadre verdoyant, idéal pour un investissement durable.

Autres villes actives à Haute-garonne (31)


Conseils pour l'achat d'un bien immobilier

Découvrez notre sélection de maisons neuves, synonymes de confort moderne et de sérénité. Trouvez votre futur chez-vous.

L'avantage d'une maison neuve

Choisir une maison neuve, c'est bénéficier des dernières normes énergétiques (RE2020) pour des économies durables, de frais de notaire réduits, et des garanties constructeur (parfait achèvement, décennale) pour une tranquillité d'esprit.

Nos types d'annonces

Explorez nos annonces : maisons clés en main prêtes à décorer, ou programmes terrain + maison pour personnaliser certains aspects.