
Maison neuve • Lalbenque (46)
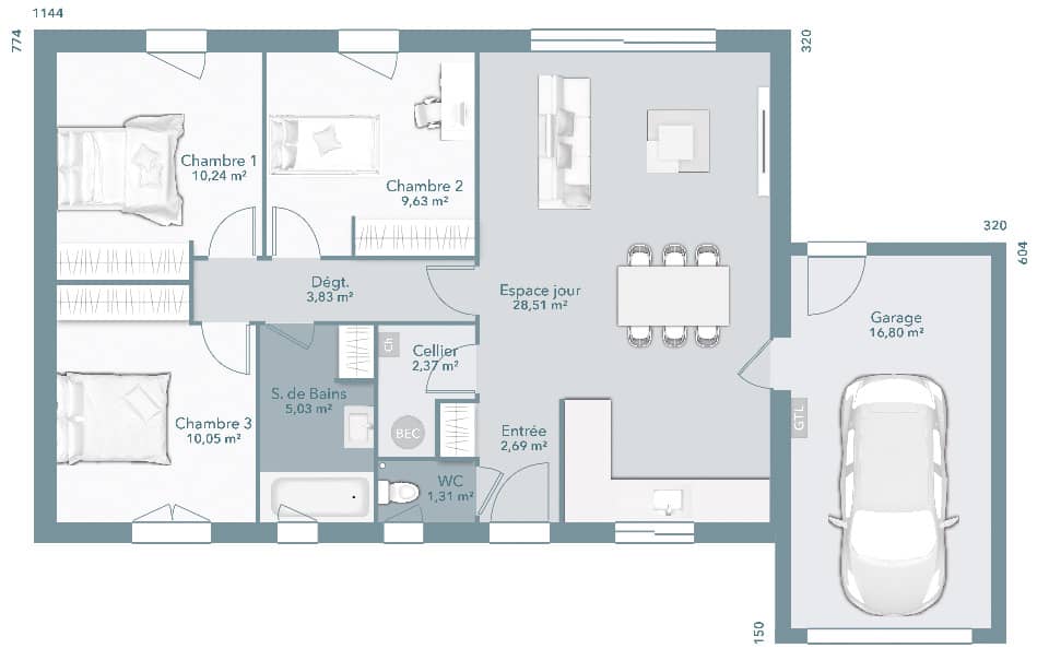
Lalbenque : maison de 4 pièces (90 m²) Venez découvrir cette maison idéalement située . Votre agence Alpha Constructions Cahors est heureuse de vous proposer cette maison de 4 pièces de 90 m² et de 1 200 m² de terrain avec vue sur bois , idéalement située dans Lalbenque (46230). Elle propose trois chambres, une cuisine et une salle de bains. Cette maison est de plain-pied. dans un quartier calme et bien exposé. L'École Élémentaire Publique, l'École Primaire Privée Sainte-Thérèse, l'École Maternelle Publique et le Collège Privé Sainte-Thérèse se trouvent à moins de 10 minutes à pied. Niveau transports, il y a la gare Lalbenque-Fontanes à moins de 10 minutes en voiture. L'autoroute A20 est accessible à 4 km. On trouve un tennis, un bassin de natation, des commerces, un supermarché, un bureau de poste et une boucherie-charcuterie à quelques minutes. Elle est proposée à l'achat pour 189 000 €.Terrain+ maison(hors frais annexes ) Contactez notre constructeur (BOTELHO Christina : 06-75-06-82-29) pour tout renseignement sur la maison ou sur les modalités de vente. Alpha Constructions Cahors est là pour vous accompagner dans tous vos projets immobiliers.
Proposé par ALPHA CONSTRUCTIONS










