
Maison neuve • Goussainville (95)
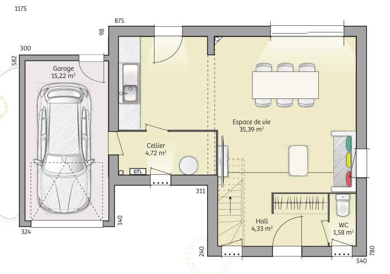
Goussainville : maison de 5 pièces (89 m²) en vente MAISON 5 PIÈCES NEUVE À vendre : au pied de la station Les Noues (Paris à 25 min par le RER D), nous vous présentons à Goussainville (95190), cette maison de 5 pièces de 89 m² et de 400 m² de terrain. Il s'agit d'une maison de 2 niveaux. Son intérieur inclut trois chambres, une cuisine et deux salles de bains. La maison est neuve. Il y a l'École Élémentaire les Hirondelles et l'École Maternelle Françoise Dolto à moins de 10 minutes à pied. Niveau transports, on trouve les lignes de RER D et B ainsi que 20 gares à moins de 10 minutes en voiture. Il y a un tennis, une bibliothèque et une épicerie à quelques minutes à peine. Son prix de vente est de 360 000 €. Contactez Antoine FLIPPE (tél : 07-82-59-37-75) pour toute question sur cette propriété, sur les démarches à suivre ou sur les modalités de vente. Maisons Balency Baillet-en-France vous accompagne dans tous vos projets immobiliers et à toutes les étapes de votre projet.
Proposé par MAISONS BALENCY - YVELINES







