

- Prix
- 1 290 000 €
Maison neuve • Antony (92)
- Nom et prix
- Terrain à bâtir Antony (92160) • 1 290 000 €
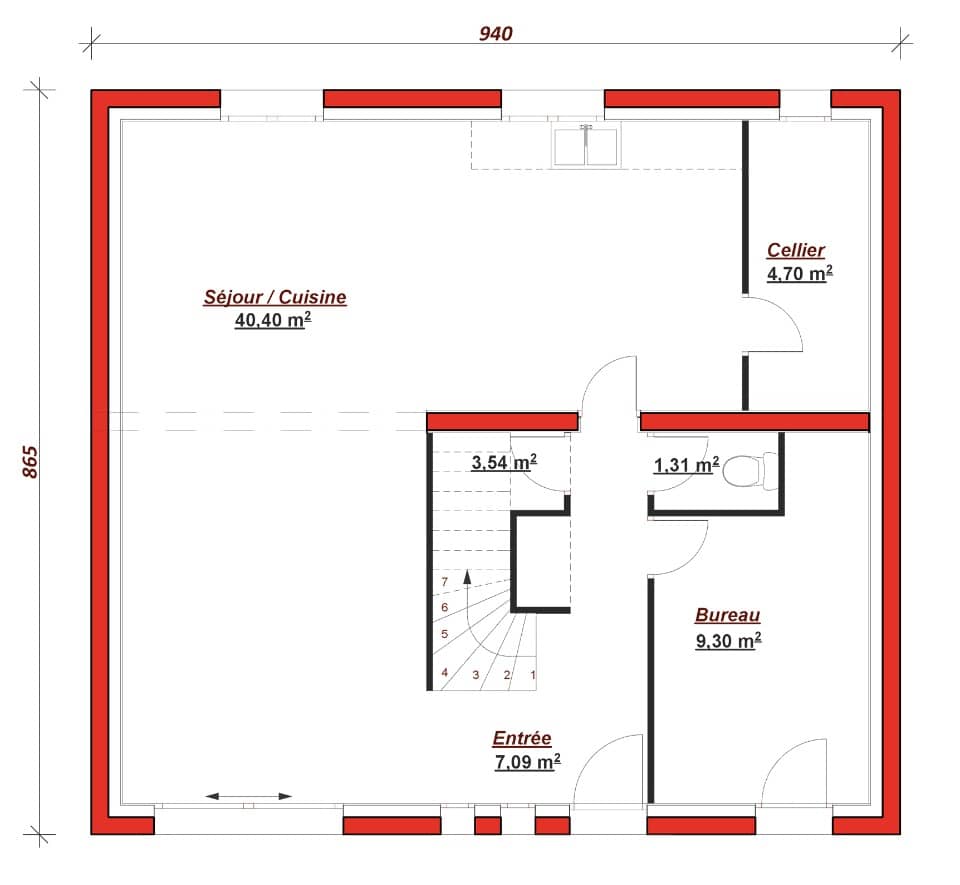
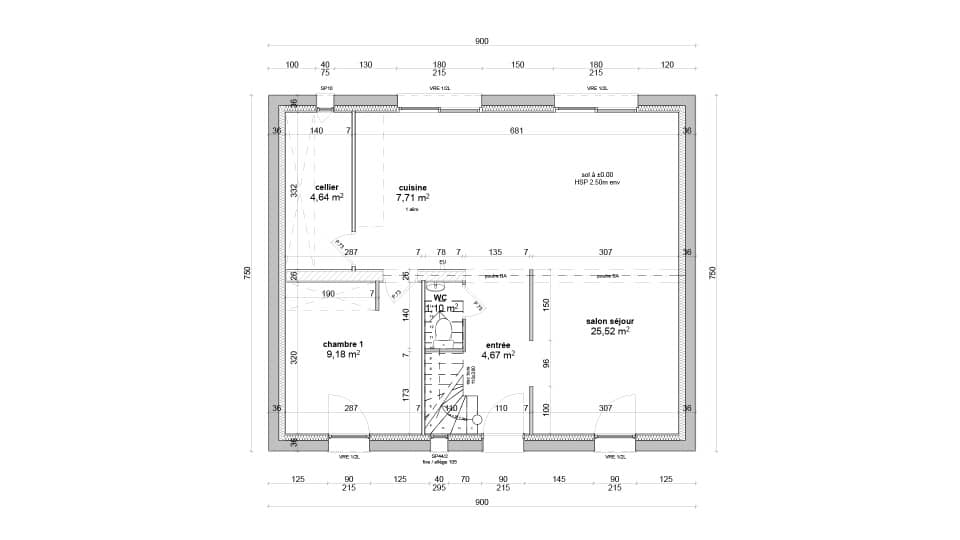
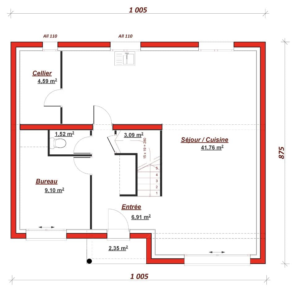
Antony : maison de 6 pièces (164 m²) en vente MAISON 6 PIÈCES NEUVE À proximité du RER B (10 min de Paris), notre agence Maisons Berval Antony est ravie de vous présenter cette maison de 6 pièces de 164 m² et de 500 m² de terrain à vendre à Antony (92160). Son intérieur offre quatre chambres, une cuisine et trois salles de bains. Cette maison compte 2 niveaux. Elle est neuve. Il y a des écoles du primaire et du secondaire à moins de 10 minutes à pied, tout comme huit crèches. Niveau transports, on trouve la ligne de RER B (Antony) dans un rayon de 1 km. Elle est à vendre pour la somme de 1 290 000 €. Contactez notre constructeur (BAGUET Cyril : 06-14-79-66-46) pour plus d'informations sur la maison ou sur les modalités de vente. Maisons Berval Antony vous accompagne dans toutes vos démarches et dans tous vos projets immobiliers.










