

- Prix
- 509 000 €
Maison neuve • Saint-Prix (95)
- Nom et prix
- Terrain à bâtir () • 509 000 €
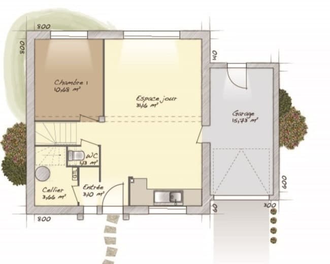
Saint-Prix : maison F6 (98 m²) à vendre PROCHE DE PARIS - MAISON 6 PIÈCES NEUVE Au pied de la gare de Gros Noyer Saint-Prix (Paris à 25 min avec le Transilien H), votre agence Maisons Balency Moisselles est heureuse de vous présenter cette maison de 6 pièces de 98 m² à vendre à Saint-Prix (95390). Cette maison comporte 2 niveaux. Elle inclut quatre chambres, une cuisine et une salle de bains. La maison est neuve. Le terrain du bien est de 390 m². Cinq établissements scolaires sont implantés à moins de 10 minutes à pied, tout comme une crèche. Niveau transports, il y a le RER C et D ainsi que 44 gares à moins de 10 minutes en voiture. On trouve un tennis, trois boulangeries, des commerces, un supermarché, un bureau de poste et une épicerie à proximité du logement. Elle est à vendre pour la somme de 509 000 €. Contactez Denis DUCOS (06-80-06-50-40) pour tout renseignement sur cette propriété, sur les démarches à suivre ou sur les modalités de vente.