
Maison neuve • Coudray (27)
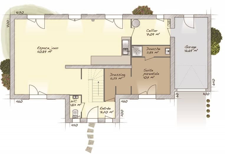
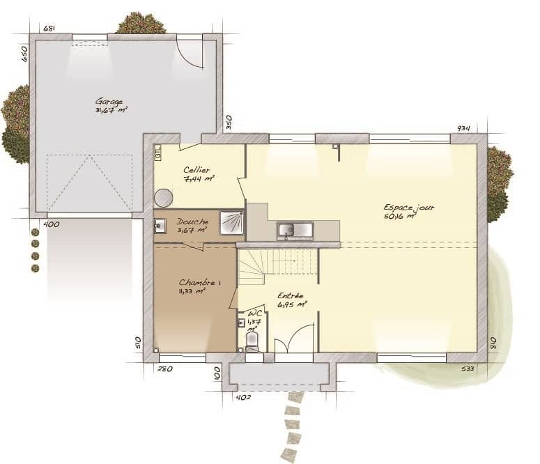
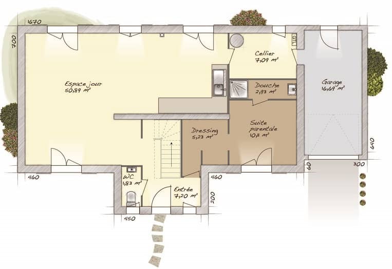
Coudray : maison T5 (105 m²) à vendre IDÉALEMENT SITUÉE - MAISON 5 PIÈCES NEUVE À vendre : à quelques kilomètres de Saint-Étienne-du-Rouvray, idéalement située dans Coudray (27150), ayez le coup de coeur pour cette maison de 5 pièces de 105 m² et de 1 300 m² de terrain. C'est une maison de 2 niveaux. Son intérieur propose quatre chambres, une cuisine et deux salles de bains. La maison est neuve. La maison se trouve dans un secteur prisé. L'École Maternelle Intercommunale est implantée à moins de 10 minutes à pied. Elle est à vendre pour la somme de 251 850 €. N'hésitez pas à prendre contact avec Carole GOITA (tél : 06-50-10-84-99) pour obtenir de plus amples renseignements sur la maison. Extraco Construction Rénovation Les Andelys est là pour vous accompagner à toutes les étapes de votre projet.
Proposé par EXTRACO - Seine-Maritime










