

- Prix
- 228 748 €
Maison neuve • Montbartier (82)
- Nom et prix
- Terrain à bâtir Montbartier (82700) • 228 748 €
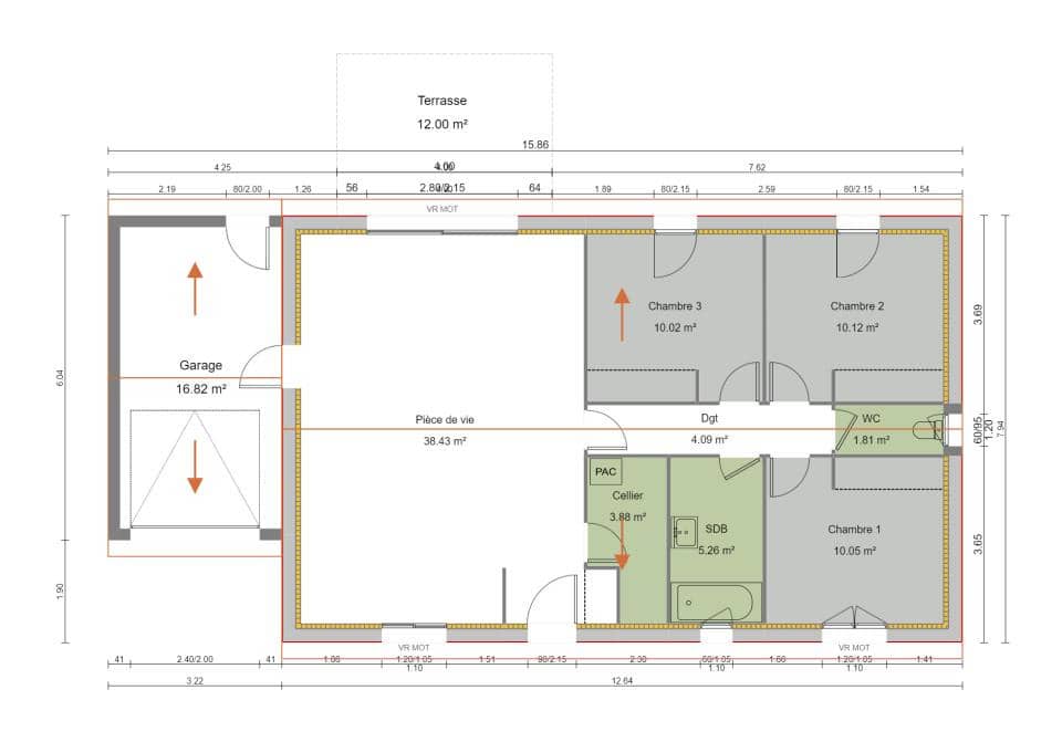
'Votre agence Maisons France Confort d'Aucamville vous propose ce beau projet maison + terrain vers MONTBARTIER. Vous cherchez à faire construire une maison de plain-pied ouverte sur la lumière extérieure et le jardin, optez pour notre plan Performa 112 ! Ce modèle se répartit en deux ailes, la première pour les pièces de vie avec une entrée et un espace ouvert pour le salon, la cuisine et la salle à manger, la deuxième pour les pièces de nuit avec 3 chambres, une salle de bains et une suite parentale en option avec dressing et salle d'eau. Ce modèle de maison est aussi apprécié pour sa fonctionnalité, puisqu'elle dispose d'un garage ouvrant sur un cellier donnant dans la cuisine et que chaque pièce possède ses rangements. prix: 228 748€hf Pour toutes informations, contactez l'agence MAISONS FRANCE CONFORT d'Aucamville au 05.34.43.84.38'










