

- Prix
- 583 000 €
Maison neuve • Villiers-sur-Marne (94)
- Nom et prix
- Terrain à bâtir () • 583 000 €
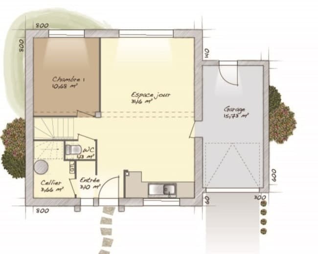
Villiers-sur-Marne : maison T6 (98 m²) à vendre MAISON 6 PIÈCES NEUVE En vente : à Villiers-sur-Marne (94350), nous vous proposons cette maison de 6 pièces de 98 m². Son intérieur propose quatre chambres, une cuisine et une salle de bains. Le terrain de la propriété est de 250 m². Cette maison possède 2 niveaux. Elle est neuve. On trouve plusieurs établissements scolaires (maternelle, élémentaire, primaire et collège) à moins de 10 minutes à pied, tout comme quatre structures d'accueil pour les enfants en bas âge. Niveau transports en commun, il y a la station de RER Villiers-Sur-Marne-Plessis-Trévise (ligne E) ainsi que la gare Villiers-sur-Marne-Le Plessis-Trévise à proximité. On trouve une bibliothèque, deux tennis, un bassin de natation, des commerces, des boulangeries, trois supermarchés, deux bureaux de poste et des supérettes dans les environs. Enfin, le marché Place de l'église anime le quartier. Elle est à vendre pour la somme de 583 000 €. N'hésitez pas à prendre contact avec notre agence (Aurelien MONTANIER : 06-24-66-88-34) pour plus d'informations sur le bien, sur les démarches à suivre ou sur les modalités de vente.










