
Maison neuve • Bessières (31)
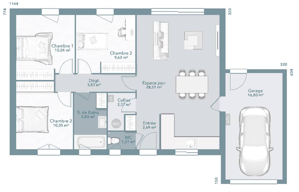
Votre agence Maisons France Confort d'AUCAMVILLE vous propose ce beau projet maison + terrain à BESSIERES dans la Haute-Garonne. Le modèle PPGA de 80m² avec garage accolé en option est une maison à la ligne épurée et moderne en RE 2020. Cette maison est parfaitement fonctionnelle et dispose de nombreux atouts : 3 chambres, une pièce vie de près de 30m² et une salle de bains. Elle se trouve sur une parcelle de 580 m² à 2 minutes des commodités et à 25 minutes de Toulouse. Pour toutes informations, contactez l'agence MAISONS FRANCE CONFORT d'AUCAMVILLE au 05 34 43 84 38 . PRIX : 209 805 € HF
Proposé par Maisons FRANCE CONFORT - Béziers










