

- Prix
- 307 470 €
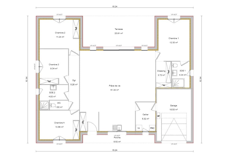
Maison neuve • Roquesérière (31)
- Nom et prix
- Terrain à bâtir Roquesérière (31380) • 307 470 €
Terrain viabilisé de 500m² + Maison Utopia 120 à Construire près de Roquesérière - L'Excellence à votre portée avec Maisons France Confort ! Sur ce terrain viabilisé et idéalement situé, offrez-vous le luxe d'une maison Utopia 120. Ce modèle d'exception de 120 m², alliant design moderne, espace et confort, répond aux plus hautes exigences. Avec son garage, ses 4 chambres, un vaste séjour lumineux, et des finitions haut de gamme, la villa Utopia 120 incarne l'élégance et la qualité pour une vie sereine et raffinée. Pourquoi choisir Maisons France Confort ? Le leader de la construction de maisons individuelles haut de gamme en France, avec plus de 100 000 maisons construites à ce jour. Utopia 120 : un modèle spacieux et lumineux, conçu avec des matériaux d'exception, pour un confort de vie incomparable. Accompagnement sur-mesure : un service exclusif et personnalisé, de la conception à la remise des clés, pour réaliser un projet parfaitement adapté à vos attentes. Des prestations haut de gamme : chaque détail de la maison est pensé pour vous offrir un cadre de vie luxueux, moderne et fonctionnel. Ce projet représente l'opportunité de vivre dans une maison d'exception, dans un cadre calme et privilégié, tout en étant proche des commodités et des transports. Prix terrain+ maison: 307 470€ hf Contactez-nous dès aujourd'hui pour une étude personnalisée et découvrez comment Maisons France Confort peut faire de votre rêve immobilier une réalité. Contactez l'agence MAISONS FRANCE CONFORT d'Aucamville au 05.34.43.84.38.