

- Prix
- 1 119 500 €
Maison neuve • Fontenay-aux-Roses (92)
- Nom et prix
- Terrain à bâtir () • 1 119 500 €
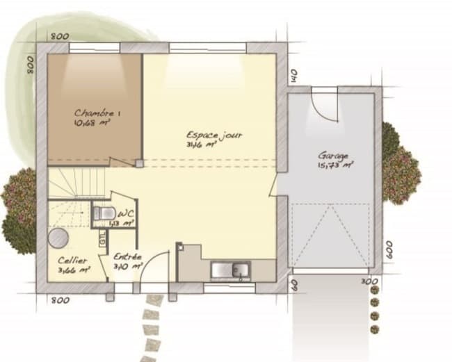
Maisons BERVAL, votre constructeur de confiance, vous propose une sélection de maisons d'exception au coeur de la commune. Chaque modèle allie modernité, confort et élégance, conçu pour répondre à toutes vos attentes. Modèle Millésime Rouge Maison individuelle Millésime Rouge Avec son design audacieux et ses finitions haut de gamme, le Millésime Rouge est une maison qui se distingue par son élégance et son caractère unique. Profitez de grands espaces de vie lumineux, d'une cuisine moderne et équipée, de chambres confortables et de salles de bain contemporaines. Le jardin privatif et le garage intégré complètent cette maison exceptionnelle. Vivez dans une maison contemporaine et élégante, où chaque détail est pensé pour votre confort et votre bien-être. Pourquoi choisir Maisons BERVAL ? • Expertise locale : Implantés à Antony, nous connaissons parfaitement les spécificités de la région. • Qualité supérieure : Nos maisons sont construites avec des matériaux de haute qualité et un savoir-faire reconnu. • Personnalisation : Chaque modèle peut être adapté à vos besoins et à vos goûts. N'attendez plus pour réaliser votre rêve de maison individuelle! Pour de plus amples informations veuillez contacter Sébastien LAFAYE - 06/26/89/32/04 Terrain vu avec notre partenaire foncier, sous réserves de disponibilité Prix hors frais de notaire et hors frais annexes












