

- Prix
- 845 000 €
Maison neuve • Brunoy (91)
- Nom et prix
- Terrain à bâtir () • 845 000 €
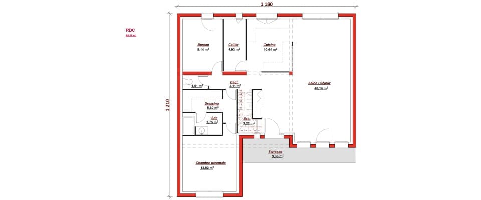
VENTE d'une maison de 6 pièces (145 m²) à Brunoy MAISON 6 PIÈCES NEUVE En vente : à 180 m de la gare, nous sommes ravis de vous présenter cette maison de 6 pièces de 145 m² et de 1 000 m² de terrain à Brunoy (91800). Cette maison possède 2 niveaux. Elle dispose de quatre chambres, d'une cuisine et de deux salles de bains. Cette maison est neuve. Il y a des écoles (de la maternelle au lycée) à moins de 10 minutes à pied, tout comme une crèche. Côté transports en commun, on trouve la station de RER Brunoy (ligne D) ainsi que la gare Brunoy à quelques pas de la maison, positionnant la maison à 25 min de Paris en rer. Son prix de vente est de 845 000 €. Contactez Cyril BAGUET (tél : 06-14-79-66-46) pour plus de renseignements sur la maison, sur les modalités de vente ou sur les démarches à suivre.