logo de nos-terrains.com

547 maisons neuves à vendre à Grenade (31) (entre 150,000 € et 250,000 €)

Résultats de recherche

Maison neuve - Terrain à bâtir Merville (31330) à Merville (31), prix 231 700 €
231 700 €
90 m²
2574 €/m²

Maison neuveMerville (31)

Votre agence Maisons France Confort d'Aucamville vous propose ce beau projet maison + terrain sur la commune de MERVILLE. Faire le choix d'une maison fonctionnelle et optimisée, c'est opter pour Optima 90 : une grande pièce de vie de 41 m², un cellier, deux chambres, une salle de bains et une suite parentale avec salle d'eau privative et dressing en option, le tout de plain-pied, avec un garage intégré et dans un style mêlant parfaitement simplicité et modernité. On adore... et vous ? Prix : 231 700 € HF Pour toute information, contactez l'agence Maisons France Confort d'Aucamville.

Proposé par Maisons FRANCE CONFORT - Béziers

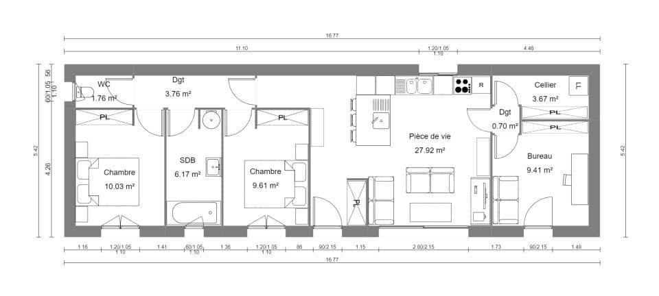
Maison neuve - Terrain à bâtir Merville (31330) à Merville (31), prix 240 300 €
240 300 €
100 m²
2403 €/m²

Maison neuveMerville (31)

'Votre agence Maisons France Confort d'Aucamville vous propose ce beau projet maison + terrain sur la commune de MERVILLE. Avec sa composition en V, l'angle n'est pas droit et la maison s'ouvre à l'extérieur, au soleil et à la lumière, c'est tous les atouts de notre plan de maison RE 2020 de plain-pied Performa 100. Conçue astucieusement pour garantir le bien-être et l'intimité de chacun, cette maison offre 2 chambres lumineuses, spacieuses avec des placards, une salle de bains et une suite parentale avec dressing et salle d'eau en option. Pour la partie jour, elle dispose d'une entrée avec un grand placard, et un espace de vie de plus de 43 m² avec cellier attenant à la cuisine et au garage en option de 18 m². Prix: 240 300€ HF Pour toutes informations, contactez l'agence MAISONS FRANCE CONFORT d'Aucamville au 05.34.43.84.38'

Proposé par Maisons FRANCE CONFORT - Béziers

Maison neuve - Terrain à bâtir Saint-Rustice (31620) à Saint-Rustice (31), prix 228 820 €
228 820 €
81 m²
2825 €/m²

Maison neuveSaint-Rustice (31)

Votre agence Maisons France Confort d'AUCAMVILLE vous propose ce beau projet maison + terrain à ST RUSTICE dans la Haute-Garonne. Le modèle PPGA de 80m² avec garage accolé en option est une maison à la ligne épurée et moderne en RE 2020. Cette maison est parfaitement fonctionnelle et dispose de nombreux atouts : 3 chambres, une pièce vie de près de 30m² et une salle de bains. Elle se trouve sur une parcelle de 900 m² à 5 minutes des commodités et à 25 minutes de Toulouse. Pour toutes informations, contactez l'agence MAISONS FRANCE CONFORT d'AUCAMVILLE au 05 34 43 84 38 . PRIX : 228 820 € HF

Proposé par Maisons FRANCE CONFORT - Béziers

Maison neuve - Terrain à bâtir Saint-Rustice (31620) à Saint-Rustice (31), prix 241 753 €
241 753 €
85 m²
2844 €/m²

Maison neuveSaint-Rustice (31)

Votre agence Maisons France Confort d'AUCAMVILLE vous propose ce beau projet maison + terrain à ST RUSTICE . PPGI 85 est un modèle de maison de plain-pied de 85m² à la ligne moderne et épurée en RE 2020. Celui-ci renferme de nombreux atouts : un garage intégré à la maison, 3 chambres, une salle de bains, une grande pièce de vie de 33m² et un cellier. Elle se trouve sur une parcelle de 900 m² à 5 minutes des commodités et à 25 minutes de Toulouse. Pour toutes informations, contactez l'agence MAISONS FRANCE CONFORT d'AUCAMVILLE au 05 34 43 84 38 . PRIX : 241 753 € HF

Proposé par Maisons FRANCE CONFORT - Béziers

Maison neuve - Terrain à bâtir Saint-Rustice (31620) à Saint-Rustice (31), prix 227 573 €
227 573 €
71 m²
3205 €/m²

Maison neuveSaint-Rustice (31)

Votre agence Maisons France Confort d'AUCAMVILLE vous propose ce beau projet maison + terrain à ST RUSTICE . De plain-pied, cette maison est construite de manière fonctionnelle pour garantir de espaces jour et nuit distincts. Le modèle Open plain-pied de 70m² avec garage intégré possède 2 chambres, une salle de bains, une pièce de vie comprenant salon et cuisine de 35m² et un cellier. Elle se trouve sur une parcelle de 900 m² à 5 minutes des commodités et à 25 minutes de Toulouse. Pour toutes informations, contactez l'agence MAISONS FRANCE CONFORT d'AUCAMVILLE au 05 34 43 84 38 . PRIX : 227 573 € HF

Proposé par Maisons FRANCE CONFORT - Béziers

Maison neuve - Terrain à bâtir Saint-Rustice (31620) à Saint-Rustice (31), prix 248 817 €
248 817 €
101 m²
2464 €/m²

Maison neuveSaint-Rustice (31)

Votre agence Maisons France Confort d'AUCAMVILLE vous propose ce beau projet maison + terrain à ST RUSTICE en Haute-Garonne. Un modèle de maison spécialement étudié et optimisé pour réussir votre projet d'investissement en toute sérénité. Ici, nous avons le modèle PPGA de 100m² avec garage accolé en option. La maison possède 4 chambres, un espace jour de 31m², une grande salle de bain d'environ 7m² et un cellier. Elle se trouve sur une parcelle de 900 m² à 5 minutes des commodités et à 25 minutes de Toulouse. Pour toutes informations, contactez l'agence MAISONS FRANCE CONFORT d'AUCAMVILLE au 05 34 43 84 38 . PRIX : 248 817 € HF

Proposé par Maisons FRANCE CONFORT - Béziers

Maison neuve - Terrain à bâtir Saint-Rustice (31620) à Saint-Rustice (31), prix 242 072 €
242 072 €
83 m²
2917 €/m²

Maison neuveSaint-Rustice (31)

L'agence Maisons France Confort d'AUCAMVILLE - NOUVEAU - Projet de construction RE 2020 avec cette maison de 83m² à ST RUSTICE . Idéale pour un premier investissement, cette maison neuve est entièrement personnalisable. Le modèle présenté est ACTUA 83, conception traditionnelle de plain-pied. Il comporte une entrée, un séjour/cuisine de 38m², un cellier, un WC et un espace nuit composé de 3 chambres et une salle de bains. Le garage en option de 16m² est accolé à la maison et accessible par la cuisine. Au coeur de la campagne toulousaine, sur une parcelle constructible de 900 m², vous profiterez des toutes les commodités à seulement 5 minutes. Vous pourrez accéder à Toulouse en 25 minutes. Votre conseiller de l'agence Maisons France Confort d'AUCAMVILLE est à votre disposition au 05 34 43 84 38 . PRIX : 242 072 € HF

Proposé par Maisons FRANCE CONFORT - Béziers

Maison neuve - Terrain à bâtir Saint-Rustice (31620) à Saint-Rustice (31), prix 245 707 €
245 707 €
75 m²
3276 €/m²

Maison neuveSaint-Rustice (31)

L'agence Maisons France Confort d'AUCAMVILLE vous présente ce projet de construction personnalisé à ce terrain aux dernières normes (RE 2020) sur la commune de St RUSTICE . Conception traditionnelle de plain-pied et entièrement personnalisable. Sur une parcelle de 900 m², le modèle proposé est OPTIMA 75. Il se compose d'un espace séjour/cuisine de 35 m² donnant accès à un cellier, de 3 chambres, une salle de bains et un WC indépendant. Un garage de 14m² est intégré à la maison. La surface habitable est de 75 m². Dans un environnement calme et agréable à proximité des commodités. Toulouse vous sera accessible en 25 minutes. Contactez l'agence Maisons France Confort d'AUCAMVILLE au 05 34 43 84 38 . PRIX : 245 707 € HF

Proposé par Maisons FRANCE CONFORT - Béziers

Maison neuve - Terrain à bâtir Larra (31330) à Larra (31), prix 247 405 €
247 405 €
81 m²
3054 €/m²

Maison neuveLarra (31)

La Millenium 3 chambres, c'est la maison parfaite pour une vie de famille tout confort ! Ce joli plain-pied séduit d'abord par son grand salon/séjour baigné de lumière, ouvert sur l'extérieur grâce à une large baie vitrée. Attenant, un garage pratique pour le quotidien. Côté nuit, chacun y trouve son espace avec 3 chambres équipées de placards, une grande salle de bains et un WC indépendant. Son architecture sobre et élégante s'adapte à tous les styles de vie et à tous les environnements. Cette maison est à construire dans le Tarn, l'Aude, l'Hérault, la Haute-Garonne ou les Pyrénées-Orientales, avec Oc Résidences, votre constructeur sur mesure en Occitanie.

Proposé par OC RESIDENCES

Maison neuve - Terrain à bâtir Saint-Cézert (31330) à Saint-Cézert (31), prix 244 784 €
244 784 €
117 m²
2092 €/m²

Maison neuveSaint-Cézert (31)

Maison F6 (117 m²) en vente à Saint-Cézert avec l'agence Maisons France Confort de Tournefeuille au 05.61.16.47.77 IDÉALEMENT SITUÉE - MAISON 6 PIÈCES NEUVE À vendre : à deux pas de Toulouse, venez découvrir cette maison de 6 pièces de plain-pied de 117 m² idéalement située dans Saint-Cézert (31330). Son intérieur offre cinq chambres, une cuisine et deux salles de bains. Le terrain du bien s'étend sur 1 200 m². La maison est neuve. Cette maison se situe dans un quartier recherché. L'École Maternelle Publique est implantée à moins de 10 minutes à pied. Niveau transports en commun, il y a la gare Grisolles à moins de 10 minutes en voiture. Les autoroutes A62 et A20 sont accessibles à moins de 19 km. On trouve une bibliothèque dans les environs. Son prix de vente est de 244 784 €. Contactez notre agence Maisons France Confort de Tournefeuille au 05.61.16.47.77 pour toute question sur la maison et sur les démarches à suivre.

Proposé par Maisons FRANCE CONFORT - Béziers

Maison neuve - Terrain à bâtir Saint-Cézert (31330) à Saint-Cézert (31), prix 240 789 €
240 789 €
85 m²
2833 €/m²

Maison neuveSaint-Cézert (31)

VENTE d'une maison de 4 pièces (85 m²) à Saint-Cézert avec l'agence Maisons France Confort de Tournefeuille au 05.61.16.47.77 IDÉALEMENT SITUÉE - MAISON 4 PIÈCES NEUVE À vendre à 28 km de Toulouse, laissez vous charmer par cette maison de 4 pièces de plain-pied de 85 m² et de 1 000 m² de terrain, idéalement située dans Saint-Cézert (31330). Conçue de plain-pied, elle compte trois chambres, une cuisine et une salle de bains. La maison est neuve. Cette maison est située dans un quartier prisé. Il y a l'École Maternelle Publique à moins de 10 minutes à pied. Côté transports en commun, on trouve la gare Grisolles à moins de 10 minutes en voiture. Les autoroutes A62 et A20 sont accessibles à moins de 19 km. Il y a une bibliothèque dans les environs. Elle est à vendre pour la somme de 240 789 €. Contactez notre agence Maisons France Confort de Tournefeuille au 05.61.16.47.77 pour toute information sur la maison, sur les démarches à suivre ou sur les modalités de vente.

Proposé par Maisons FRANCE CONFORT - Béziers

Maison neuve - Terrain à bâtir Saint-Cézert (31330) à Saint-Cézert (31), prix 227 894 €
227 894 €
81 m²
2814 €/m²

Maison neuveSaint-Cézert (31)

VENTE d'une maison T4 (81 m²) à Saint-Cézert avec l'agence Maisons France Confort de Tournefeuille au 05.61.16.47.77 IDÉALEMENT SITUÉE - MAISON 4 PIÈCES NEUVE En vente : à quelques kilomètres de Toulouse, nous sommes ravis de vous proposer cette maison de 4 pièces de plain-pied de 81 m² idéalement située dans Saint-Cézert (31330). Elle inclut trois chambres, une cuisine et une salle de bains. Le terrain de la maison est de 1 000 m². La maison est neuve. Cette maison se situe dans un quartier attractif. Il y a l'École Maternelle Publique à moins de 10 minutes à pied. Niveau transports en commun, on trouve la gare Grisolles à moins de 10 minutes en voiture. Les autoroutes A62 et A20 sont accessibles à moins de 19 km. Il y a une bibliothèque à proximité. Elle est proposée à l'achat pour 227 894 €. Contactez notre agence Maisons France Confort de Tournefeuille au 05.61.16.47.77 pour toute question sur la maison. Maisons France Confort Tournefeuille vous accompagne dans tous vos projets immobiliers et à toutes les étapes de votre projet.

Proposé par Maisons FRANCE CONFORT - Béziers


Illustration Maisons neuves en vente à proximité de Grenade (31)

Maisons neuves en vente à proximité de Grenade (31)

**Grenade (Haute-Garonne, 31)** : Ville dynamique de la **plaine de la Garonne**, à 20 km au nord-ouest de Toulouse, Grenade allie **cadre de vie préservé** et **proximité métropolitaine**. Connue pour son **patrimoine historique** (église Saint-Michel, bastide médiévale), elle séduit par ses **espaces verts** et son **artisanat local**. **Optez pour une maison neuve** : profitez des **programmes immobiliers récents**, des **aides à l’accession** et d’un **environnement familial** à moins de 30 minutes de Toulouse. Idéal pour investir ou s’installer !

Autres villes actives à Haute-garonne (31)


Conseils pour l'achat d'un bien immobilier

Découvrez notre sélection de maisons neuves, synonymes de confort moderne et de sérénité. Trouvez votre futur chez-vous.

L'avantage d'une maison neuve

Choisir une maison neuve, c'est bénéficier des dernières normes énergétiques (RE2020) pour des économies durables, de frais de notaire réduits, et des garanties constructeur (parfait achèvement, décennale) pour une tranquillité d'esprit.

Nos types d'annonces

Explorez nos annonces : maisons clés en main prêtes à décorer, ou programmes terrain + maison pour personnaliser certains aspects.