

- Prix
- 363 745 €
Maison neuve • Hargeville (78)
- Nom et prix
- Terrain à bâtir Hargeville (78790) • 363 745 €
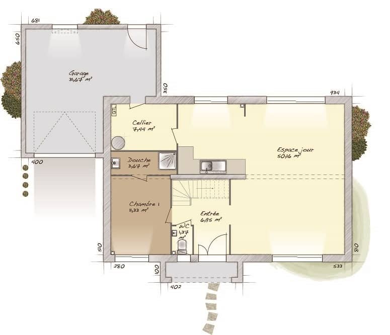
Maison T5 (98 m²) en vente à Hargeville IDÉALEMENT SITUÉE - MAISON 5 PIÈCES NEUVE À vendre : à deux pas de la gare d'Orgerus-Béhoust (Paris à 45 min avec le Transilien N), ayez le coup de coeur pour cette maison de 5 pièces de 98 m² avec vue sur jardin idéalement située dans Hargeville (78790). C'est une maison de 2 niveaux. Elle compte quatre chambres, une cuisine et une salle de bains. Cette maison est neuve. Le terrain du bien s'étend sur 501 m². La maison se trouve dans un secteur attractif. L'École Primaire Henri Barlet est implantée à moins de 10 minutes à pied. On trouve un tennis, un commerce et une boulangerie dans les environs. Elle est à vendre pour la somme de 363 745 €. Contactez Thibault DUTEURTRE (06-23-41-73-81) pour toute question sur la maison ou sur les modalités de vente.











