

- Prix
- 965 800 €
Maison neuve • Le Plessis-Robinson (92)
- Nom et prix
- Terrain à bâtir () • 965 800 €
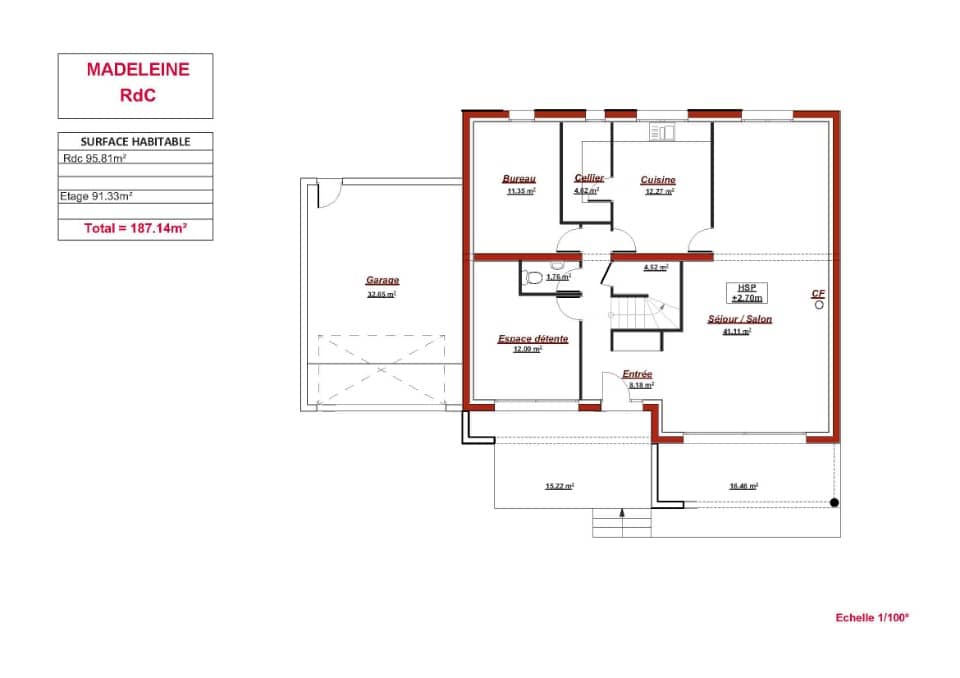
Maison T6 (164 m²) en vente au Plessis-Robinson Maison individuelle Millésime Rouge au PLESSIS ROBINSON Avec son design audacieux et ses finitions haut de gamme, le Millésime Rouge est une maison qui se distingue par son élégance et son caractère unique. Profitez de grands espaces de vie lumineux, d'une cuisine moderne et équipée, de chambres confortables et de salles de bain contemporaines. Le jardin privatif et le garage intégré complètent cette maison exceptionnelle. Vivez dans une maison contemporaine et élégante au PLESSIS ROBINSON, où chaque détail est pensé pour votre confort et votre bien-être. Pourquoi choisir Maisons BERVAL ? • Expertise locale : Implantés à Antony, nous connaissons parfaitement les spécificités de la région. • Qualité supérieure : Nos maisons sont construites avec des matériaux de haute qualité et un savoir-faire reconnu. • Personnalisation : Chaque modèle peut être adapté à vos besoins et à vos goûts. Il y a des établissements scolaires (de la maternelle au lycée) à moins de 10 minutes à pied, tout comme deux structures d'accueil pour les enfants en bas âge. Niveau transports en commun, on trouve le RER B et C ainsi que 49 gares à moins de 10 minutes en voiture. Il y a une bibliothèque, quatre supermarchés, des commerces, des boulangeries, une poissonnerie et quatre épiceries à quelques minutes. N'attendez plus pour réaliser votre rêve de maison individuelle au PLESSIS ROBINSON! Pour de plus amples informations veuillez contacter Sébastien LAFAYE - 06/26/89/32/04 Terrain vu avec notre partenaire foncier, sous réserves de disponibilité Prix hors frais de notaire et hors frais annexes












