

- Prix
- 779 000 €
Maison neuve • Maisons-Alfort (94)
- Nom et prix
- Terrain à bâtir Maisons-Alfort (94700) • 779 000 €
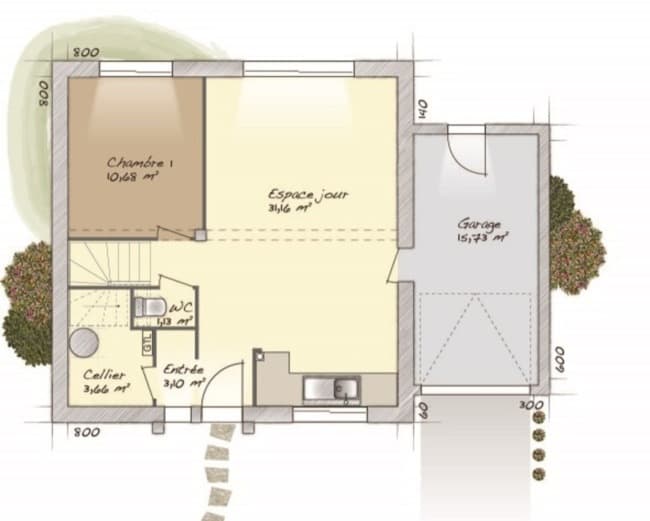
Maisons-Alfort : maison de 6 pièces (98 m²) en vente MAISON 6 PIÈCES NEUVE À proximité de la station Maisons-Alfort-Alfortville du RER D (5 min de Paris), à vendre à Maisons-Alfort (94700), découvrez cette maison de 6 pièces de 98 m². Son intérieur compte quatre chambres, une cuisine et une salle de bains. Le terrain de la propriété s'étend sur 293 m². C'est une maison de 2 niveaux. Elle est neuve. Des établissements scolaires (de la maternelle au lycée) se trouvent à moins de 10 minutes à pied, tout comme cinq crèches. Côté transports, il y a cinq lignes de RER ainsi que 38 gares à moins de 10 minutes en voiture. On trouve trois tennis, une bibliothèque, un bassin de natation, des supermarchés, des boulangeries, des commerces, trois supérettes et des boucheries-charcuteries dans les environs. Elle est à vendre pour la somme de 779 000 €. Prenez contact avec Aurelien MONTANIER (06-24-66-88-34) pour toute question sur cette maison ou sur les démarches à suivre. Maisons Balency Saint-Maur-des-Fossés vous accompagne dans tous vos projets immobiliers et dans toutes vos démarches.