

- Prix
- 374 870 €
Maison neuve • Orgeval (78)
- Nom et prix
- Terrain à bâtir () • 374 870 €
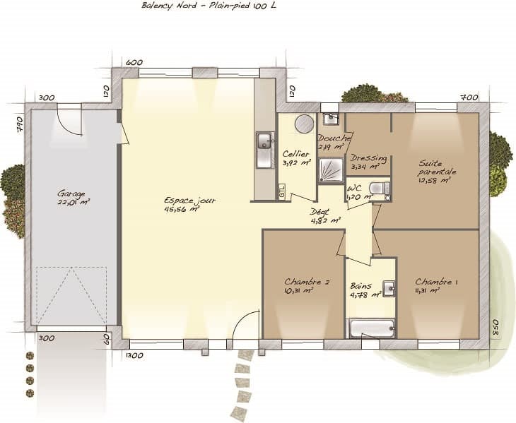
Maison T5 (100 m²) en vente à Orgeval MAISON 5 PIÈCES NEUVE - PROCHE DE PARIS À vendre : au pied de la gare de Villennes-sur-Seine (Paris à 20 min avec le Transilien J), nous vous présentons cette maison de 5 pièces de plain-pied de 100 m² et de 320 m² de terrain à Orgeval (78630). Elle compte trois chambres, une cuisine et deux salles de bains. La maison est neuve. L'École Élémentaire Privée Sainte Jeanne d'Arc et l'École Élémentaire Louis Pasteur sont implantées à moins de 10 minutes à pied. Niveau transports en commun, il y a la ligne de RER A (Poissy) ainsi que 24 gares à moins de 10 minutes en voiture. On trouve une bibliothèque, des commerces, deux boulangeries, deux supermarchés, deux épiceries et un bureau de poste à proximité. Elle est à vendre pour la somme de 374 870 €. N'hésitez pas à prendre contact avec notre agence (Denis DUCOS : 06-80-06-50-40) pour tout renseignement sur cette maison ou sur les modalités de vente.











