

- Prix
- 360 000 €
Maison neuve • Marines (95)
- Nom et prix
- Terrain à bâtir () • 360 000 €
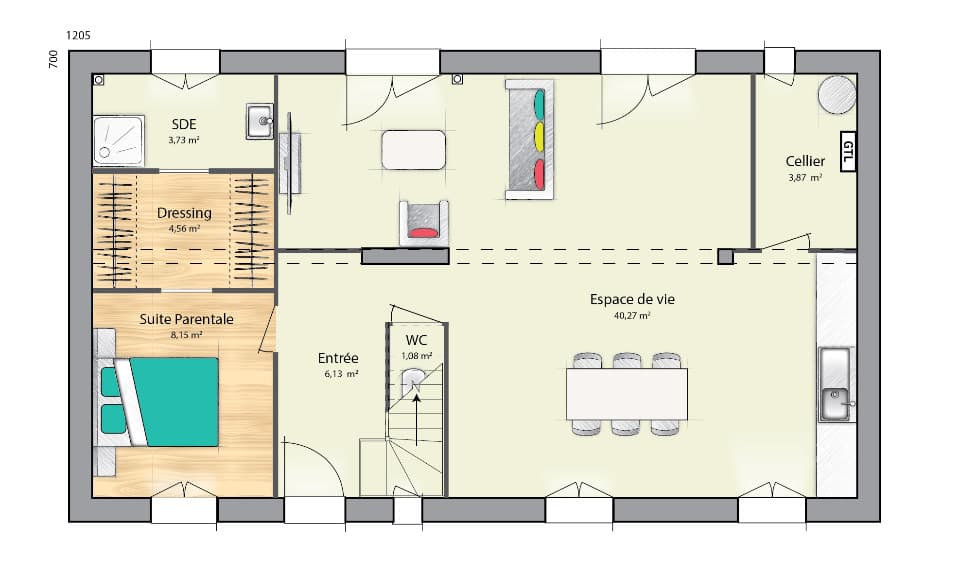
Construisez votre maison au coeur du Vexin Français, dans le charmant village de Marines (95). Sur un terrain de 434 m² avec une façade constructible de 13 ml, Maisons France Confort vous accompagne dans la réalisation d'un projet traditionnel, respectant l'authenticité et le charme de la région. Bénéficiez d'un cadre de vie paisible et pratique, avec écoles, commerces et services médicaux à proximité, ainsi qu'un accès rapide aux grands axes. Une maison à votre image, livrée avec des prestations de qualité. Exemple de projet: Maison à étage avec combles aménagés, de 105 m² comprenant 4 chambres dont 1 suite parentale au rez de chaussée (Sde et Dressing) 3 chambres à l'étage avec 1 salle de bain principale. Sans Garage. Contactez Xavier au 06 16 27 53 27 de Chez Maisons France Confort, pour plus d'informations et concrétisez votre projet de vis à Marines (95)













