

- Prix
- 435 000 €
Maison neuve • Villiers-Adam (95)
- Nom et prix
- Terrain à bâtir () • 435 000 €
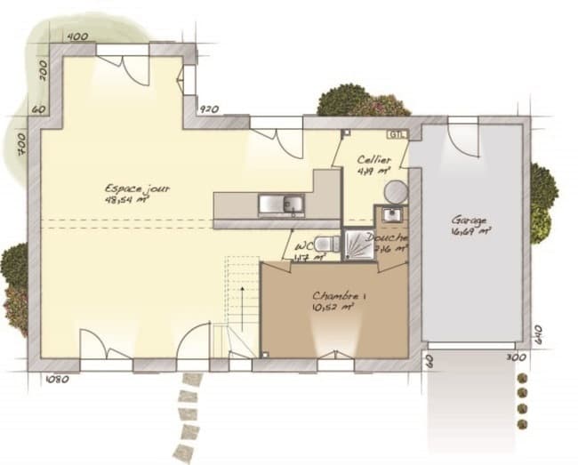
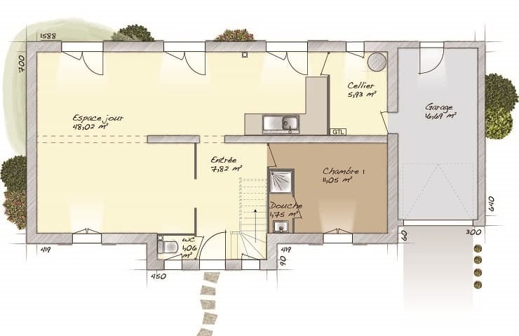
Maison F6 (114 m²) en vente à Villiers-Adam MAISON 6 PIÈCES NEUVE - PROCHE DE PARIS À vendre : à côté de la gare de Mériel (Paris à 40 min par le Transilien H), nous vous présentons à Villiers-Adam (95840), cette maison de 6 pièces de 114 m² et de 625 m² de terrain. Son intérieur propose quatre chambres, une cuisine et deux salles de bains. Cette maison comporte 2 niveaux. Elle est neuve. L'École Primaire Publique Paul Cézanne est implantée à moins de 10 minutes à pied. Niveau transports, il y a la ligne de RER C (Montigny-Beauchamp) ainsi que 33 gares à moins de 10 minutes en voiture. On trouve un tennis, une bibliothèque et un commerce dans les environs. Elle est à vendre pour la somme de 435 000 €. Prenez contact avec Denis DUCOS (06-80-06-50-40) pour obtenir de plus amples renseignements sur cette maison ou sur les modalités de vente. Maisons Balency Moisselles vous accompagne dans toutes vos démarches et dans tous vos projets immobiliers.











