

- Prix
- 439 867 €
Maison neuve • Maule (78)
- Nom et prix
- Terrain à bâtir () • 439 867 €
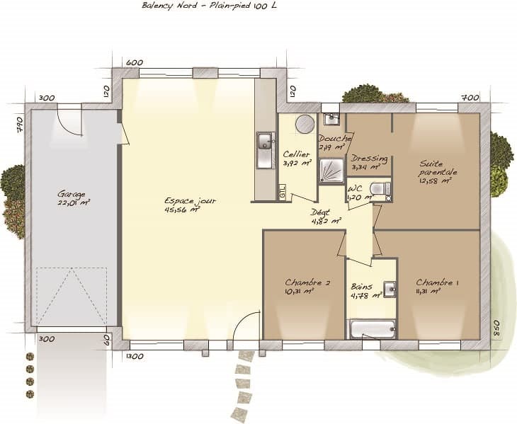
Maule : maison T5 (100 m²) en vente MAISON 5 PIÈCES NEUVE - PROCHE DE BOULOGNE-BILLANCOURT À quelques minutes du Transilien N (60 min de Paris), à vendre à Maule (78580), nous sommes heureux de vous présenter cette maison de 5 pièces de plain-pied de 100 m². Conçue de plain-pied, elle inclut trois chambres, une cuisine et deux salles de bains. Cette maison est neuve. Le terrain du bien est de 990 m². Des établissements scolaires de tous niveaux (de la maternelle au lycée) sont implantés à moins de 10 minutes à pied. Niveau transports en commun, il y a la gare Maule juste à côté. On trouve une bibliothèque, un tennis, des commerces, des boulangeries, un supermarché, trois épiceries et trois boucheries-charcuteries à proximité. Elle est proposée à l'achat pour 439 867 €. Prenez contact avec notre agence (DUCOS Denis : 06-80-06-50-40) pour tout renseignement sur la maison ou sur les démarches à suivre. Maisons Balency Moisselles est là pour vous accompagner à toutes les étapes de votre projet.












