

- Prix
- 409 200 €
Maison neuve • Conflans-Sainte-Honorine (78)
- Nom et prix
- Terrain à bâtir () • 409 200 €
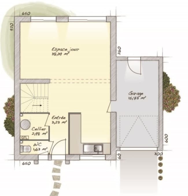
Conflans-Sainte-Honorine : maison de 5 pièces (90 m²) à vendre IDÉALEMENT SITUÉE - MAISON 5 PIÈCES NEUVE Proche du Transilien J (20 min de Paris), Maisons Balency Pierrelaye vous présente en vente, idéalement située dans Conflans-Sainte-Honorine (78700), cette maison de 5 pièces de 90 m² et de 400 m² de terrain. Il s'agit d'une maison de 2 niveaux. Elle inclut quatre chambres, une cuisine et une salle de bains. La maison est neuve. La maison est située dans un quartier attractif. Il y a plusieurs écoles (maternelle, élémentaire et lycée) à moins de 10 minutes à pied, tout comme deux crèches. Côté transports, on trouve la gare Conflans-Sainte-Honorine à quelques pas de la maison. Il y a un tennis, une bibliothèque, des commerces, des boulangeries, un supermarché, quatre supérettes et un bureau de poste dans les environs. Son prix de vente est de 409 200 €. Contactez notre agence (TALAMONI Christophe : 06-49-55-08-27) pour tout renseignement sur la maison, sur les démarches à suivre ou sur les modalités de vente. Maisons Balency Pierrelaye vous accompagne à toutes les étapes de l'achat et dans tous vos projets immobiliers.











