

- Prix
- 514 000 €
Maison neuve • Gometz-la-Ville (91)
- Nom et prix
- Terrain à bâtir Gometz-la-Ville (91400) • 514 000 €
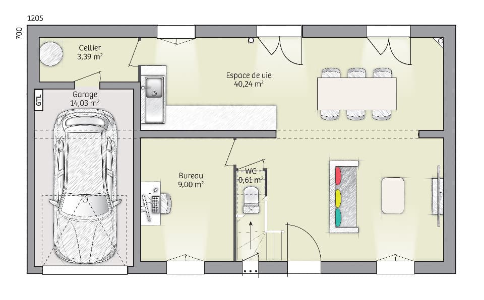
VENTE : Maison T5 (90 m²) à Gometz-la-Ville Proposé par Virginie au 06/19/89/86/67 IDÉALEMENT SITUÉE — MAISON NEUVE DE 5 PIÈCES À Gometz-la-Ville (91400), à seulement quelques minutes de la station Gif-sur-Yvette (RER B — Paris en 30 minutes), découvrez cette belle maison neuve de 90 m² habitables. Elle se compose de : 4 chambres spacieuses Une cuisine lumineuse et fonctionnelle 2 salles de bains modernes Un séjour confortable et chaleureux Le tout sur un superbe terrain de 633 m² offrant espace et tranquillité. Un emplacement recherché : À moins de 10 minutes de l'École Primaire Jean Bertin Proche du RER B et des grands axes À proximité : commerces, boulangerie, supermarché, épicerie et installations sportives (tennis) Prix de vente : 514 000 € De plus, bénéficier des avantages du Prêt à taux 0% ! Pour en savoir plus ou organiser une visite, contactez sans attendre Virginie BARRIONUEVO au 06/19/89/86/67 Avec Maisons Evolution Savigny-sur-Orge, concrétisez votre projet immobilier en toute sérénité.











